EasyManua.ls Logo

Norcold DC440 - Page 11

Norcold DC440
16 pages
Print Icon
To Next Page IconTo Next Page
To Next Page IconTo Next Page
To Previous Page IconTo Previous Page
To Previous Page IconTo Previous Page
Loading...
11
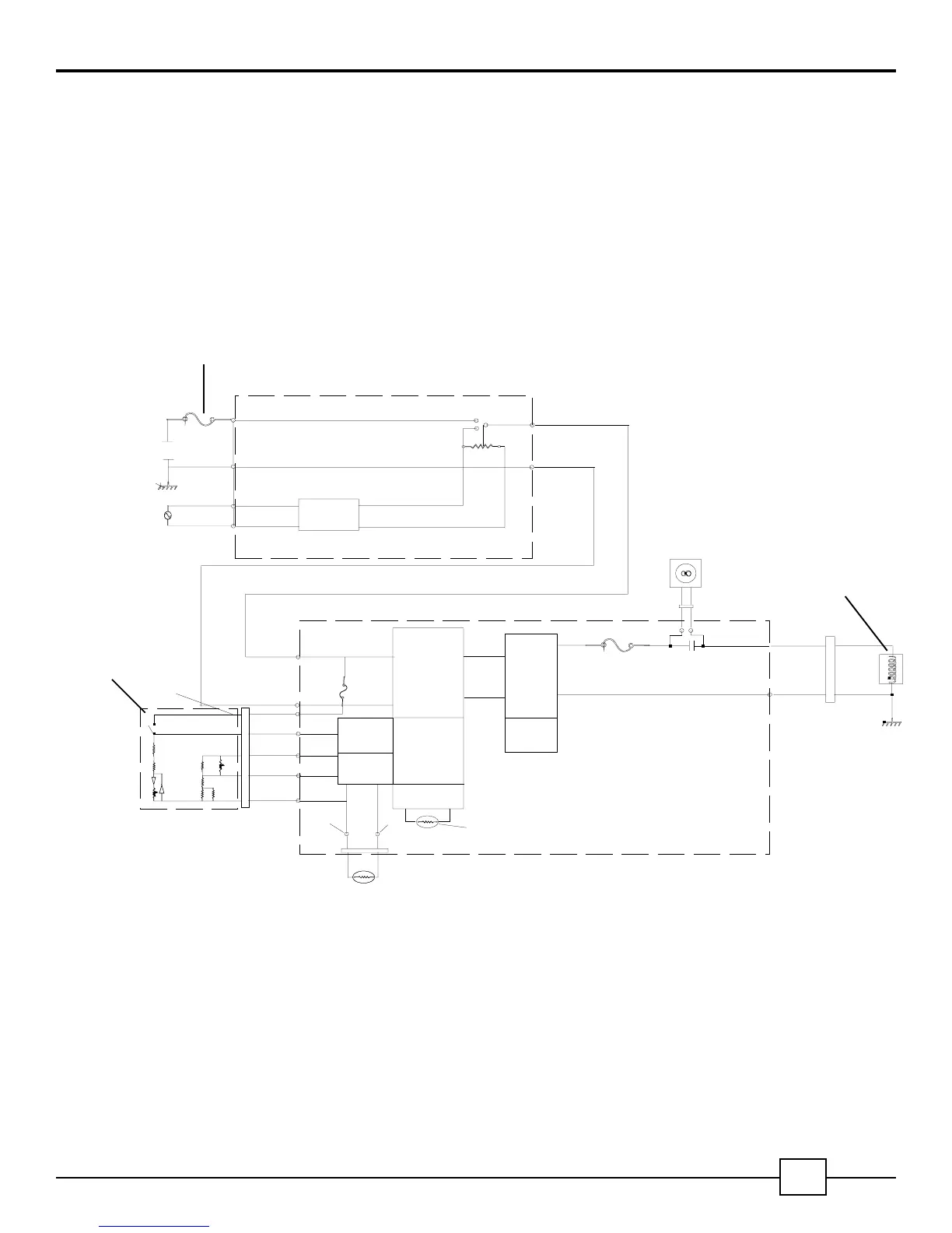
Red
Black
DC 12-32 V
+ DC
AC 85-132 V
Orange
White
+
-
AC/DC
Converter
DC 24 V
Red
DC Out +
Black
DC Out -
DC/DC
Converter
Low Temp.
Protector
Battery
Monitor
Electronic
Thermostat
+
-
DC Input
Evaporator
Thermistor
Blue
Blue
Ambient Thermistor
Black
Brown
Yellow
Orange
Red
AC/DC Part
DC/Inverter
Electronic
Current
Protector
Inverter
DC 44.5 V
@ 40 W
DC 51 V
@ 60 W
DC 24V
Fan Motor
Fan
Red
+
Black
Red
Black
Blue
Black
Output
AC - IN (L)
AC - In (N)
Battery In +
Battery In -
- DC
Input High
Voltage
Protector
TP 5
TP 6
TP 7
TP 8
TP 1
TP 2
TP 3
ART01204
Compressor
10 or 8 AMP
Blade Fuse
F3 Fuse
F2
Fuse
Temperature
Control
Trouble Shooting - Wiring Schematic

Related product manuals