EasyManua.ls Logo

Norcold DE-704 - Battery Power System Setup; Dual Battery Hook-Up Diagram; Battery Capacity and Charging

Norcold DE-704
9 pages
Print Icon
To Next Page IconTo Next Page
To Next Page IconTo Next Page
To Previous Page IconTo Previous Page
To Previous Page IconTo Previous Page
Loading...
~
SHORELINE CORD
12OV
,
60
Hz
VEHICLE
120V
,
AC
SUPPLY
OR
M/G
SET
120v
-
-
I
TO
REFRIG
I
USE CORRECT WIRE SIZE
POSITIVE AND NEGATIVE LEADS
TO PREVENT VOLTAGE
DROP
AT REFRIGERATOR
SEE WIRE SIZE TABLE. PAGE
3
0
I
SUGGESTED ALTERNATIVE
2GOLF
CAR BATTERIES
6V
IN
SERIES
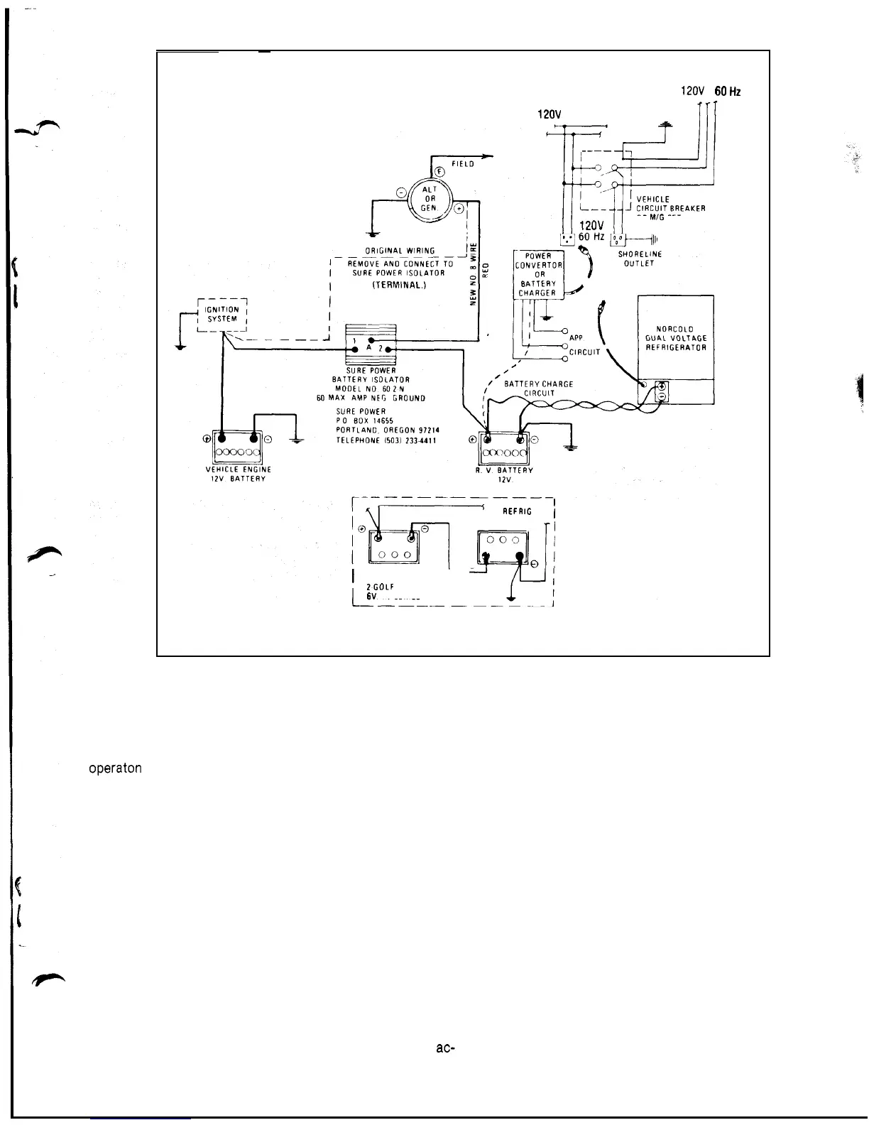
Dual Battery
Hook
-
Up
INFORMATION ON BATTERY POWER
The battery power required for the operation of your refrigera
-
tor is dependent upon the number of D.C. appliances being
used and the type of operation desired
-
whether remote
from any power source for an extended period or overnight
operaton only.
A
battery must also be sufficiently charged to prevent over
-
draw.
A
battery is rated in ampere hours
-
that is, it is capable of
sustaining its rated ampere capacity for a period
of
one hour.
If
the total amperage load of the vehicle is high (25 amperes),
then the installation
of
a 72
-
ampere
-
hour battery will not pro
-
vide the required power for any length of time unless it is aided
by a recharging source such as an alternator or generator.
Various load requirements of the vehicle D.C. system dictate
the ampere
-
hour capacity that should be installed.
Please refer to the diagram for the suggested dual
-
battery wir
-
ing diagram. You will note that in this diagram there are two
separate battery sources. One source is the vehicle or car
battery used exclusively for the operation of the engine and
accessory equipment such as head lights. The other source is
for the operation
of
the D.C. appliances within the recreational
vehicle. This battery source is referred to as the
ac-
cessory or house battery and is used solely for that purpose.
Both of these battery sources are charged by one alternator
or generator which is powered by the vehicle engine. This
charging device should be of adequate amperage rating
so
that a short engine run will bring the batteries up to full charge.
The standard alternator has a minimum rating of
60
amperes.
Check your voltage regulator or cut
-
out for correct charging
level. Voltage should be
13
to
14.5
volts to the battery.
Important Points Regarding Battery Powered Sources
The dual battery switch or battery isolator is an important
component as it permits the alternator or generator to charge
both the accessory battery and the vehicle battery during op
-
eration of the vehicle engine, but limits the current draw of the
D.C. appliances to the accessory battery source when the en
-
gine of the vehicle is idle or stopped, thus assuring that the
vehicle battery is fully charged for starting the engine. The
batteries referred to in the diagram are two 6
-
volt golf cart
batteries connected in series to provide 12 volts. Golf cart
batteries are suggested for the following reasons:
(1)
Larger plate construction
(2) Deep draw characteristics
(3)
High ampere hour rating
5

Related product manuals