EasyManua.ls Logo

Nordic ND6 - Wiring Diagram

Nordic ND6
10 pages
To Next Page IconTo Next Page
To Next Page IconTo Next Page
To Previous Page IconTo Previous Page
To Previous Page IconTo Previous Page
Loading...
Installation and Operating Instructions
Page 6
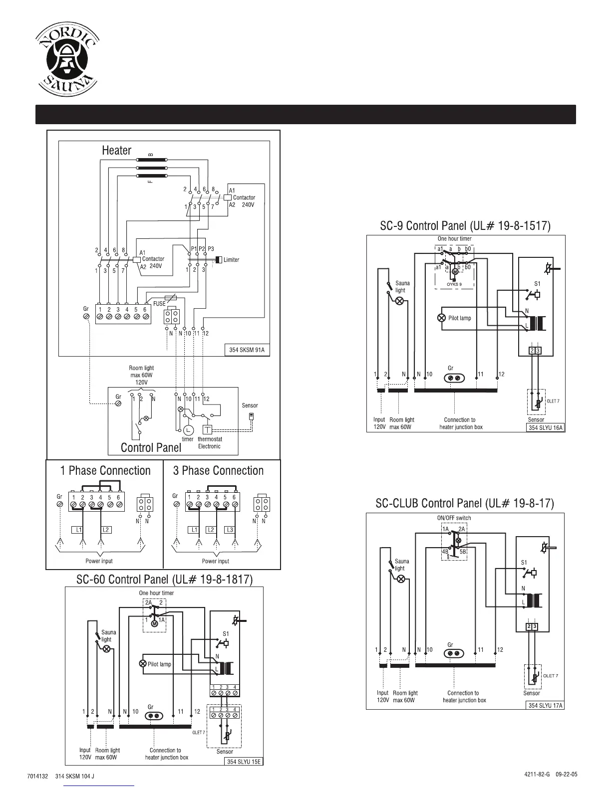
DIAGRAM 6
WIRING DIAGRAM:
Heater Models: ND6 and ND8
(UL#’s 1712-60-0204 and
1712-80-0204)