EasyManua.ls Logo

Nortek T4BE - Page 23

Nortek T4BE
24 pages
Print Icon
To Next Page IconTo Next Page
To Next Page IconTo Next Page
To Previous Page IconTo Previous Page
To Previous Page IconTo Previous Page
Loading...
23
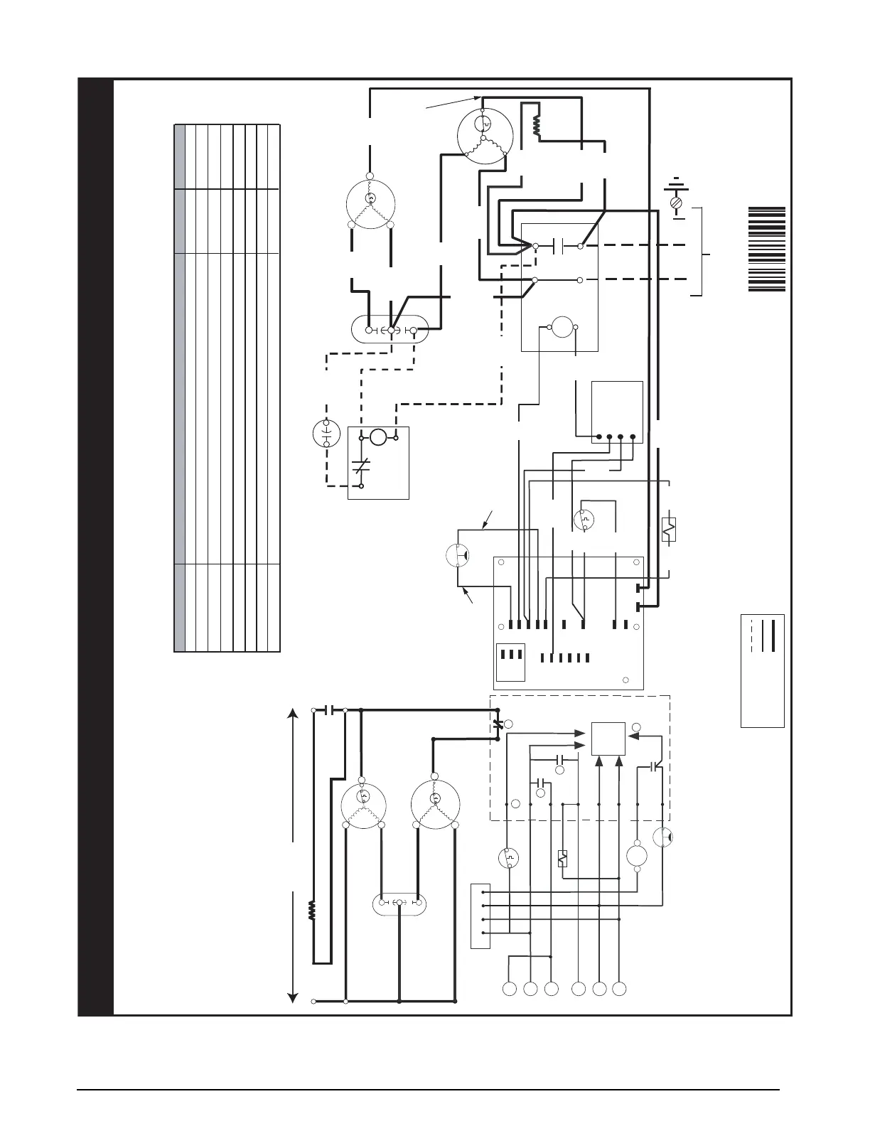
Outdoor
Fan Motor
CC
C
H
F
Dual
Capacitor
(Single Phase)
Field Supply
L1
Grd
L2
Grounding
Screw
C
S
C
R
P
CoreSense
T1 T2
L1 L2
HPS
Contactor
R
Start
Capacitor*
Black
kcalB/wolleY
Comp
Orange
Low
Voltage
Terminals
See
Note 6
Red
Red
Defrost
Thermostat
T2
DFT
TEST
T1
T2
C
Y
O
W2
R
DFT
E
C
Y
O
W2
R
E
DF1 DF2
BlackBlack
Reversing Valve
Solenoid
CC
Black
Defrost Control Board
Yellow
CCH
Y
Black
Blue
Black
R
C
S
Route “CWire Through
CoreSense Module
Start Relay*
5
2
1
Black
kcalB/wolleY
Red
Yellow
Blue
Black
Gray
Yellow
Black
Yellow
Red
WIRING DIAGRAM
711206
(Replaces 710533D)
1/13
CCH
1. Disconnect all power before servicing.
2. For supply connections use copper conductors only.
3. Not suitable on systems that exceed 150 volts to ground.
4. For replacement wires use conductors suitable for 105° C.
5. For ampacities and overcurrent protection, see unit rating plate.
6. Connect to 24 vac/40va/class 2 circuit. See furnace/air handler installation
Single Phase
Split System Heat Pump (Outdoor Section)
NOTES:
1. Couper le courant avant de faire letretien.
2. Employez uniquement des conducteurs en cuivre.
3. Ne convient pas aux installations de plus de 150 volt a la terre.
instructions for control circuit and optional relay/transformer kits.
Dual Capacitor
H
C
F
Compressor
Contacts
Compressor
Outdoor Fan Motor
R
C
S
L1
T1
L2
T2
Low Voltage
Terminals
E
Defrost Control Board
DFT
Control
Logic
DF1
DF2
DFT
1
2
3
4
1
R
W2
O
Y
C
T2
T1
R
W2
O
Y
C
RVS
CC - Contactor Coil
CCH - Crankcase Heater
DFT - Defrost Thermostat
HPS - High Pressure Switch
LPS - Low Pressure Switch
RVS - Reversing Valve Solenoid
* - Hard Start Kit Field Installed
1. Closing during defrost.Rating: 1 Amp. Max.
2. Opens during defrost. Rating: 2 HP at 230 Vac Max.
3. Closed when "Y" is on. Open when "Y" is off.
Provides "off" delay time of 5 min. when "Y" opens.
4. With DFT closed and "Y" closed, compressor run
time is accumulated. Opening of DFT during
defrost or interval period resets the interval to 0.
Defrost Board Operation:
HPS
208/230V
R
PYC
CoreSense
CC
R
C
S
FIELD WIRING
LEGEND:
LOW VOLTAGE
HIGH VOLTAGE
Normal Operation, no trip
CoreSense Status LED
Normal Run; Solid Yellow
N/AN/A
N/AN/A
N/AN/A
4 cons, 10x total
4 cons, 10x total
4 cons, 10x total
1 Occurrence
10 consecutive
Red: Flash 2
Red: Flash 3
Red: Flash 4
Red: Flash 5
Red: Flash 9
Code 1; Yellow Flash 1
Code 2; Yellow Flash 2
Code 3; Yellow Flash 3
Code 4; Ye llow Flash 4
Long Run Time. Compressor running extremely long run cycle. (disabled in HP mode.)
noitacidnI tuokcoLleveL tuokcoLnoitpircseD DEL sutatS
Comprsesor Pressure Trip. Disch. or suct. pressure out of limits or compressor overloaded.
Short Cycling. Compressor is running only briefly.
Locked Rotor.
Code 5; Yellow Flash 5 Compressor Moderate Run. Compressor runs >15min, then trips >7min.
Code 9; Red Flash 19 Over Current Protection. PROT terminal has >2A input for more than 40ms
Tr ip; Solid Red Demand but compressor is not running
Figure 18. Wiring Diagram for PSH4BE Series (4 & 5 Ton Models with CoreSense
TM
)

Related product manuals