EasyManua.ls Logo

NuTone ACS30 - INSTALLING THE DUCTWORK; WALL CAPS (FIG. 9); ROOF CAPS

NuTone ACS30
8 pages
Print Icon
To Next Page IconTo Next Page
To Next Page IconTo Next Page
To Previous Page IconTo Previous Page
To Previous Page IconTo Previous Page
Loading...
4
INSTALANDO LOS
DUCTOS
NOTA
ESTAS INSTRUCCIONES SEGUIRÁN LOS PLANES
HECHOS EN LA PÁGINA 2. COMIENCE EN LA
PARTE EXTERIOR Y TRAIGA EL DUCTO HACIA
EL EXTRACTOR.
PARA EL MEJOR RENDIMIENTO DE SU EXTRAC-
TOR, USE EL CAMINO MÁS CORTO DE DUCTO Y
UN MÍNIMO DE CODOS.
NUNCA DESCARGUE EL AIRE DEL EXTRACTOR
EN EL ESPACIO DE LA BUHARDILLA PORQUE
UNA ACUMULACIÓN DE GRASA PODRÍA CAUSAR
UN INCENDIO.
USE SOLAMENTE DUCTOS DE METAL (NO USE
DUCTOS DE PLÁSTICO). ENSÁMBLELOS BIEN
DE MANERA QUE EN CASO DE QUE HUBIESE UN
INCENDIO CAUSADO POR GRASA, EL INCENDIO
SE QUEDARÁ CONTENIDO DENTRO DE LOS
DUCTOS DE METAL.
ES UNA BUENA PRÁCTICA EL PONER CINTA EN
TODAS LAS CONEXIONES DEL DUCTO HACIÉ-
NDOLOS NO SOLAMENTE SEGUROS SI NO TAM-
BIÉN A PRUEBA DE ESCAPE DE AIRE.
15. Siga las direcciones apropiadas abajo para el tipo de
ductos que esté instalando:
CASQUETES DE PARED (FIG. 9)
Use una sierra sable para cortar un hueco ligeramente
más grande que el diámetro del ducto de manera que el
ducto se alinee más fácilmente con el extractor. Instale
tiras de sostén en las paredes exteriores que estén
acabadas con superficie exterior de madera, aluminio o
vinilo. Ensamble los ductos y ponga cinta en todas las
uniones. Traiga los ductos de afuera hacia al extractor.
Sujete el casquete de pared a la última sección de ducto
y clave el casquete a la pared. Selle alrededor de la ceja
del casquete con un compuesto para rellenar. Asegúrese
que hay suficiente ducto que entra a la cocina de manera
que el ducto sobrepasará y entrará dentro el conector
de regulador/ducto por lo menos por 3/4” cuando esté
el ducto instalado.
CASQUETES DEL TECHO
Corte un hueco en el techo más grande que el diámetro
del ducto de manera que el ducto se alineará más fácil-
mente con el extractor. Recorte el tejado (tablillas de
tejado) alrededor de hueco de manera que quepan apre-
tadamente alrededor de casquete cuando éste instalado.
Ensamble los ductos y ponga cinta aislante en todas las
uniones. Traiga el ducto hacia abajo, al extractor. Recorte
el ducto paralelo a la inclinación del techo, dejando 3/4”
de ducto que se proyecte más arriba de techo. Selle
la abertura alrededor de ducto con cemento de techo.
Instale el casquete insertando el filo de atrás de la ceja
del casquete debajo de las tablillas del tejado. Selle
alrededor del casquete con cemento de techo y selle
todas las cabezas de clavos y tablillas que fueron cor-
tadas o levantadas.
Asegúrese que haya suficiente ducto que se proyecte
dentro la cocina de manera que el ducto sobrepase al
conector de regulador/ducto por 3/4” cuando el extractor
esté en su sitio.
INSTALLING THE
DUCTWORK
NOTE
THESE INSTRUCTIONS WILL FOLLOW THE
PLANS MADE ON PAGE 2. START AT THE
EXTERIOR AND RUN THE DUCT BACK TO
THE RANGE HOOD.
FOR BEST PERFORMANCE OF YOUR RANGE
HOOD, USE THE SHORTEST POSSIBLE DUCT
RUN AND A MINIMUM NUMBER OF ELBOWS.
NEVER VENT A RANGE HOOD INTO AN ATTIC
SPACE BECAUSE A BUILDUP OF GREASE
WILL BECOME A FIRE HAZARD.
USE ONLY METAL DUCTWORK (DO NOT USE
PLASTIC DUCT). ASSEMBLE SECURELY SO
THAT IN CASE OF A GREASE FIRE ON THE
RANGE, THE FIRE WILL BE CONTAINED IN-
SIDE METAL DUCT WORK.
IT IS A GOOD PRACTICE TO TAPE ALL DUCT
CONNECTIONS, MAKING THEM BOTH SE-
CURE AND AIR TIGHT.
15. Follow appropriate directions below for type of
duct work you are installing:
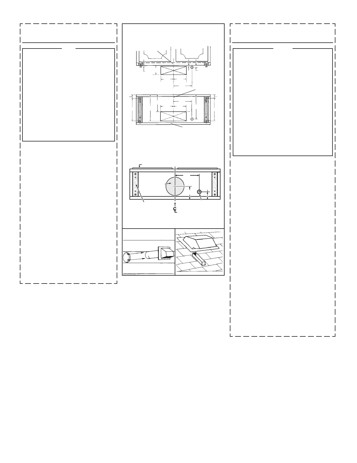
WALL CAPS (FIG. 9)
Use a saber saw to cut a hole slightly larger than duct
so duct will line up easily with hood. Install casing
strips on outside walls finished in siding. Assemble
the duct work and tape all joints. Run duct work back
to hood. Fasten wall cap to last section of duct and
nail or screw cap to wall. Seal all around flange on
wall cap with caulking compound. Make sure that
enough duct runs into the room so that the duct will
overlap the damper/duct connector by 3/4” when
the hood is installed.
ROOF CAPS
Cut hole in roof slightly larger than duct so duct will
line up easily with hood. Trim shingles around hole
so that they will fit snugly around hood of cap when
cap is installed. Assemble the duct work and tape
all joints. Run the duct work down to hood. Trim duct
parallel to roof pitch, leaving 3/4” of duct projecting
above roof. Seal all around duct with roof cement.
Install roof cap, inserting back edge of cap under
shingles. Seal around cap with roof cement and seal
all nail heads and shingles which were cut or lifted.
Make sure that enough duct runs into the room so
that the duct will overlap the damper/duct connector
by 3/4” when the hood is put into place.
FIG. 8
FRONT OF CABINET
PARTE FRONTAL DEL
GABINETE
VERTICAL DUCTING AND WIRING
(Through Cabinet Bottom)
DUCTOS Y ALAMBRES PARA CONEXION VERTICAL
(A través de la parte inferior del gabinete)
CABINET BOTTOM
PARTE INFERIOR DEL
GABINETE
BACK WALL
PARED TRASERA
FIG. 9
WALL CAP
TAPA DE PARED
3/8”
3-7/8”
HORIZONTAL DUCTING AND
WIRING (Through Wall)
DUCTOS Y ALAMBRES PARA CONEXION
HORIZONTAL (A través de la pared)
5-1/4”
5-1/4”
7-1/2”
1/8”
3/4”
1-1/2”
1-1/2”
9”
10-5/8”
6-7/8”
7-1/2”
5-1/4”
5-1/4”
9-7/8”
9”
CABINET FRONT / FRENTE DEL GABINETE
CABINET BOTTOM
FONDO DEL GABINETE
7½"
2"
5"
WOOD SHIMS
(recessed-bottom cabinets only)
CUÑAS DE MADERA
(sólo gabinetes de fondo empotrado)
ELECTRICAL ACCESS HOLE
(in cabinet bottom)
ORIFICIO DE ACCESO PARA
LOS CABLES ELÉCTRICOS
(en el fondo del gabinete)
8" DIA. ACCESS HOLE
ORIFICIO DE ACCESO
8" DE DIÁ.
3-1/4” x 10” DUCT
DUCTO DE 3-1/4” x 10”
7” ROUND DUCT
DUCTO REDONDO DE 7”

Related product manuals