EasyManua.ls Logo

NuTone CV750

NuTone CV750
24 pages
To Next Page IconTo Next Page
To Next Page IconTo Next Page
To Previous Page IconTo Previous Page
To Previous Page IconTo Previous Page
Loading...
7
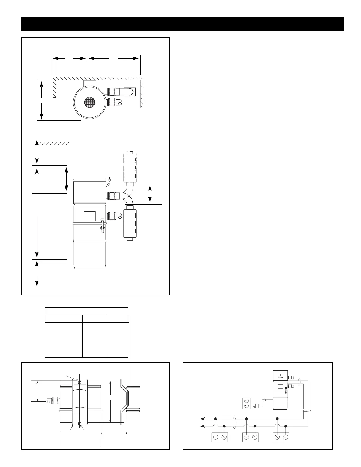
INSTALLATION DE L’ASPIRATEUR
MONTAGE - Consultez la figure 18
1. Placez l’aspirateur à moins de 1,5 m d’une prise électrique mise à
la terre.
2. Percez deux orifices de .49 cm de diamètre pour les deux (2) vis
de montage dans un montant mural ou dans une pièce de bois de
soutien. Consultez la figure 19.
3. Insérez les vis de montage. Laissez entre 3,2 et 4,7 mm entre la
tàte de la vis et le montant.
4. Suspendez l’aspirateur sur les vis de montage. Assurez-vous que
la partie allongée des orifices supérieur et inférieur en forme de
trou de serrure est bien engagée derrière la tàte de la vis.
Appuyez sur l’aspirateur pour vous en assurer.
5. Enlevez le réservoir de l’aspirateur.
6. Installez un sac, puis replacez le réservoir.
RACCORDEMENT DES TUYAUX
1. Au moyen de raccords de caoutchouc et de brides pour tuyau,
raccordez les tuyaux d’aspiration et d’échappement à l’aspirateur.
2. Raccordez le tuyau d’aspiration à l’accès inférieur de l’aspirateur.
3. Raccordez le silencieux et le tuyau d’échappement à la prise
supérieure d’échappement de l’aspirateur.
4. Assurez-vous que toutes les connexions sont bien étanches.
5. L’échappement ne doit pas àtre dirigé dans un mur, un plafond ou
un endroit confiné de la maison. Il doit àtre raccordé à l’extérieur
au moyen d’un évent mural modèle 393 ou d’un évent de toit.
CÂBLAGE - Consultez la figure 20.
Directives de mise à la terre - Cet appareil doit être mis à la terre. En
cas de défaillance ou de bris, la mise à la terre constitue une voie de
moindre résistance pour le courant électrique, ce qui rvéduit les
risques de choc électrique. Cet appareil est doté d’un cordon
comprenant une fiche avec broche de mise à la terre. La fiche doit àtre
branchée dans une prise électrique correctement installée et mise à la
terre, conformément aux codes et aux règlements en vigueur.
Danger - Le fait de ne pas raccorder correctement le fil de mise à la
terre de l’équipement pourrait constituer des risques de choc
électrique. Consultez un électricien si vous ne savez pas si la prise
électrique est bien mise à la terre. Ne modifiez pas la fiche dont est
doté l’appareil - si vous n’arrivez pas l’insérer dans la prise électrique,
demandez à un électricien d’installer une prise appropriée.
Cet appareil doit àtre raccordé à un circuit de 120 V nominal et est
doté d’une broche de mise à la terre. Assurez-vous que l’appareil est
branché dans une prise dont la configuration est identique à cette de la
fiche. Vous ne devez utiliser aucun adaptateur avec cet appareil.
1. Raccordez le fil basse tension (calibre 18, deux conducteurs,
modèle 376-UL) aux deux fils basse tension situés sur le boåtier de
l’aspirateur.
2. L’aspirateur est doté d’un cordon électrique mis à la terre de 1,5 m.
Branchez ce cordon dans une prise électrique 120 V, mise à la terre.
DIMENSION CV653 CV750
A 81,9 92,08
B 19,7 26,67
C 17,46 30,5
D 34,61 40,01
E 15,56 16,51
FIGURE 18
LOWER
SLOT
11
1
/2"
MOUNTING
BRACKET
TOP KEYHOLE SLOT
"E"
INTAKE
FIGURE 19
FIGURE 20
ESPACE AU MUR MINIMUM
ÉCHAPPEMENT
ASPIRATION
VUE DU DESSUS
“D”
12"
18"
30 CM AU MOINS AU PLAFOND
VUE AVANT
ASPIRATION
ÉCHAPPEMENT
45,72 CM MINIMUM AU DESSUS DU PLANCHER
“A”
HAUTER
GLOBALE
“B” ENTRE LE
DESSUS DE
L’APPAREIL ET
L’ORIFICE
D’INSTALLATION
SUPÉRIEUR
“C”
NOTA: LES FILS DE LA PRISE
DOIVENT ÊTRE RACCORDÉS
AUX BORNES DE L’APPAREIL
AU MOYEN DES
CONNECTEURS PAR CLIP DE
1/4 PO DE CE DERNIER
CÂBLAGE
CORDON
ÉLECTRIQUE
CONNECTEURS
PAR CLIP
FILS DE
PRISE
PRISE PRISE PRISE
VERS LES
AUTRES
PRISES
FIL DE MODÉLE 376-UL (18/2)
PRISE ÉLECTRIQUE
120 Vc.a.
ASPIRA-
TEUR
ORIFICE D’INSTALLATION SUPÉRIEUR
ASPIRATION
BRIDE DE
MONTAGE
ORIFICE
INFÉRIEUR
30
CM
45,72
CM
29,2 CM
TABLEAU DES DIMENSIONS
MODÉLES

Related product manuals