EasyManua.ls Logo

NuTone CV750 - Power Unit Installation; Dimensional Chart; Mounting; Tubing Connections

NuTone CV750
24 pages
Print Icon
To Next Page IconTo Next Page
To Next Page IconTo Next Page
To Previous Page IconTo Previous Page
To Previous Page IconTo Previous Page
Loading...
7
1. Using rubber couplings and hose clamps, connect intake and
exhaust tubing to the power unit.
2. Connect intake tubing to lower intake tube on power unit.
3. Connect muffler and exhaust tubing to upper exhaust tube on
the power unit.
4. Make sure all tubing connections are air tight.
5. The exhaust should not be vented into a wall, a ceiling or a
concealed space in the house. The exhaust line should be
terminated outside the home, using Model 393 Wall Cap or a
roof vent.
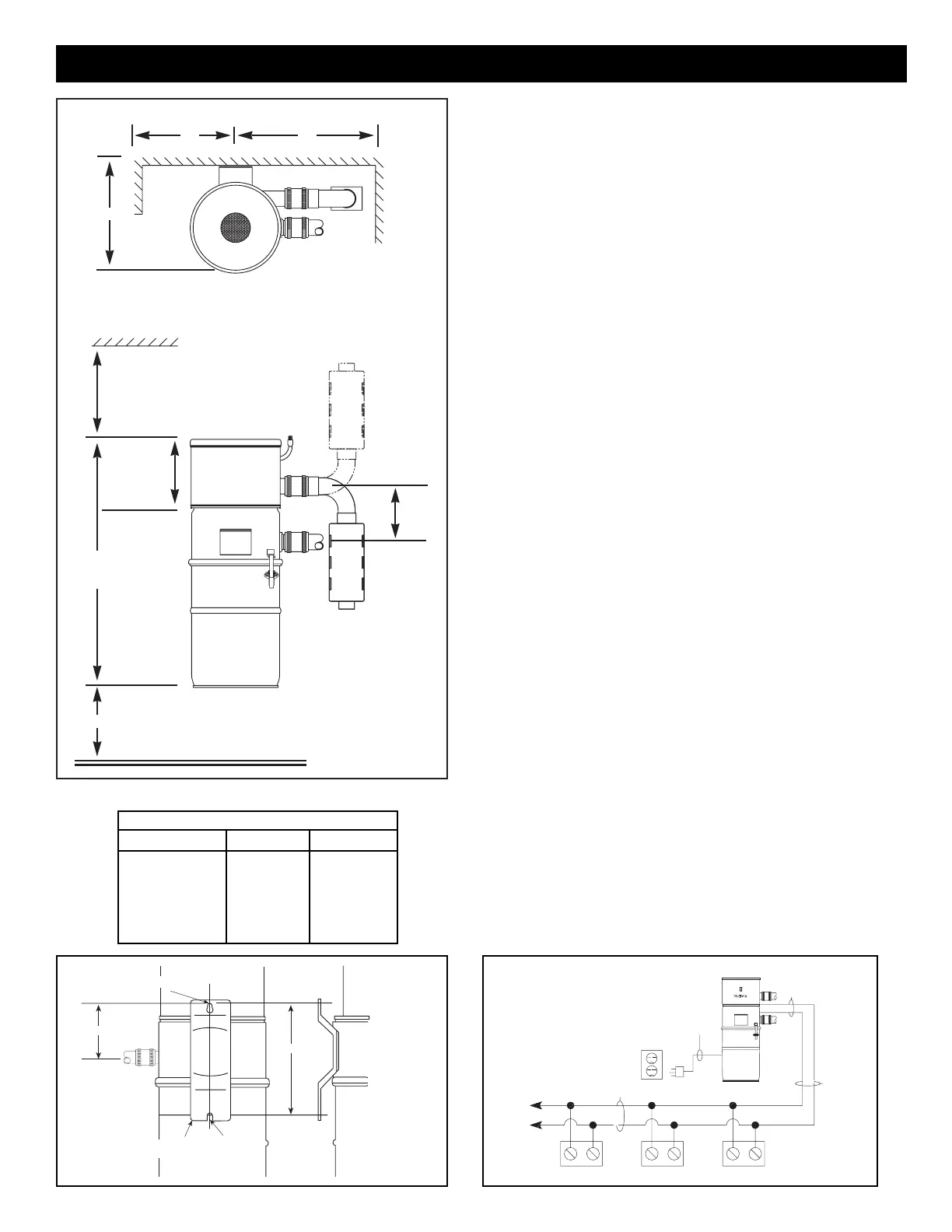
DIMENSIONAL CHART
MODELS
DIMENSION CV653 CV750
A32
1
4
"36
1
4
"
B7
3
4
"10
1
2
"
C6
7
8
" 12"
D13
5
8
"15
3
4
"
E6
1
8
"6
1
2
"
FIGURE 18
LOWER
SLOT
11
1
/2"
MOUNTING
BRACKET
TOP KEYHOLE SLOT
"E"
INTAKE
FIGURE 19
FIGURE 20
POWER UNIT INSTALLATION
TUBING CONNECTIONS
MOUNTING See Figure 18.
1. Locate power unit within six feet of a grounded electrical outlet.
2. Drill
3
16" diameter pilot holes for the two (2) mounting screws in a
wall stud or strong support. See Figure 19.
3. Tighten mounting screws. Leave approximately
1
8" to
3
16"
clearance between head of screw and wall.
4. Hang power unit onto mounting screws. Make sure top keyhole
slot and lower slot in mounting bracket are engaged behind
mounting screws. Pull down to secure.
5. Remove dirt canister from power unit.
6. Install soil bag and securely replace dirt canister.
WIRING See Figure 20.
Grounding Instructions – This appliance must be grounded. If
it should malfunction or breakdown, grounding provides a path of
least resistance for electric current, to reduce the risk of electric
shock. This appliance is equipped with a cord having an
equipment-grounding conductor and grounding plug. The plug must
be plugged into an appropriate outlet that is properly installed and
grounded in accordance with all local codes and ordinances.
Danger –
Improper connection of the equipment-grounding
conductor can result in a risk of electric shock. Check with a
qualified electrician or service person if you are in doubt as to
whether the outlet is properly grounded. Do not modify the plug
provided with the appliance – if it will not fit the outlet, have a proper
outlet installed by a qualified electrician.
This appliance is for use on a nominal 120-volt circuit and has a
grounding plug. Make sure that the appliance is connected to an
outlet having the same configuration as the plug. No adapter
should be used with this appliance.
1. Connect low voltage wire (18 gauge, 2-conductor, Model 376-UL)
to crimp connectors located on outside of the power unit.
2. The power unit is equipped with a six foot grounded cord.
Plug cord into 120 volt grounded receptacle.
MINIMUM WALL CLEARANCE DIMENSIONS
EXHAUST
INTAKE
TOP VIEW
“D”
12"
18"
12" MINIMUM TO CEILING
FRONT VIEW
INTAKE
EXHAUST
18" MINIMUM ABOVE FLOOR
“A”
OVERALL
HEIGHT
“B”
TOP OF
UNIT TO
TOP
KEYHOLE
SLOT
“C”
NOTE: INLET LEADS TO BE
CONNECTED TO POWER UNIT
TERMINALS USING THE 1/4"
PUSH-ON CONNECTORS ON
POWER UNIT.
WIRING
POWER
CORD
PUSH-ON
CONNECTORS
INLET
LEADS
INLET INLET INLET
TO
OTHER
INLETS
MODEL 376-UL (18/2) WIRE
120VAC ELECTRICAL
OUTLET
POWER
UNIT

Related product manuals