EasyManua.ls Logo

OEC UroView 2800 - System CPUs - Table;Generator Interface PCB

Default Icon
91 pages
Print Icon
To Next Page IconTo Next Page
To Next Page IconTo Next Page
To Previous Page IconTo Previous Page
To Previous Page IconTo Previous Page
Loading...
OEC UroView
®
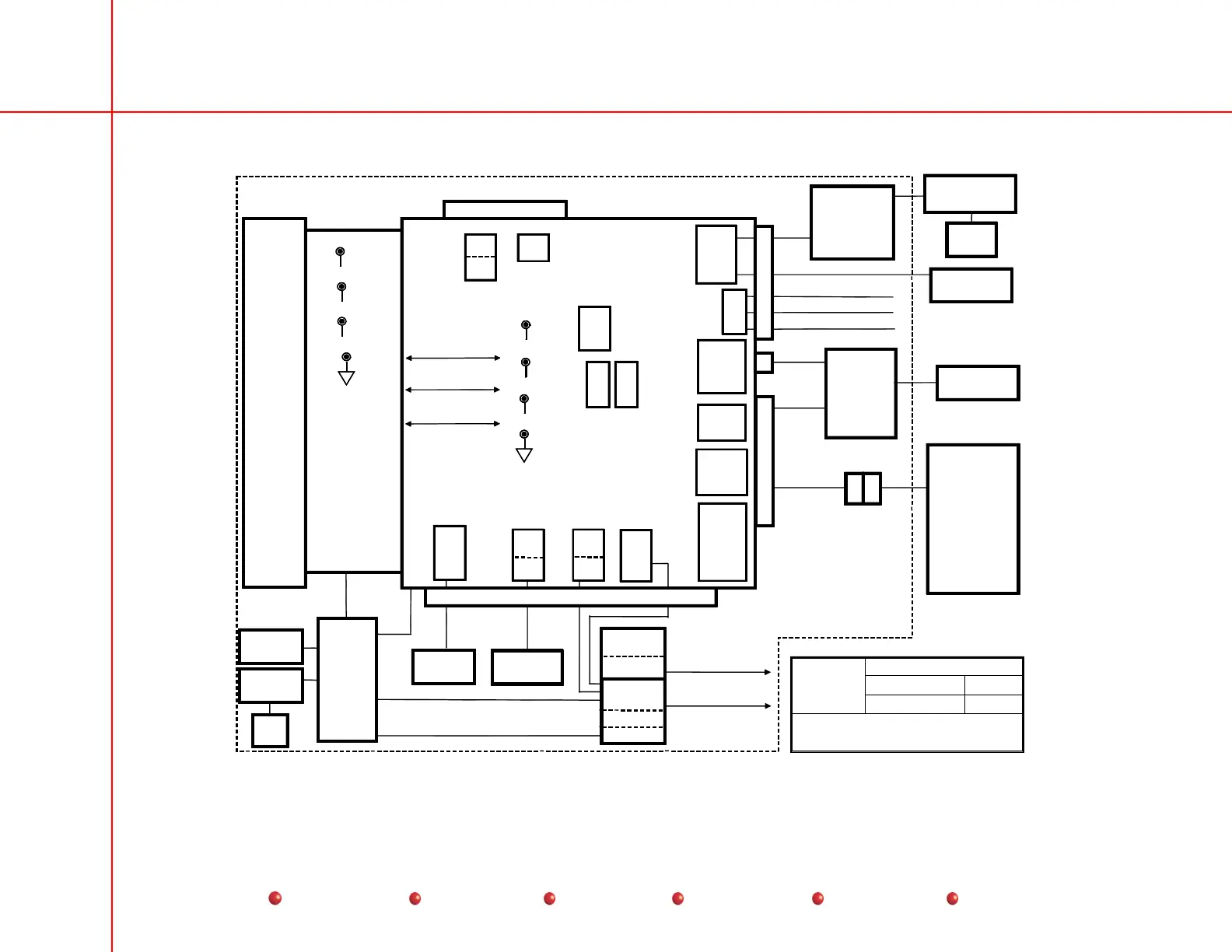
2800 Table/Generator Functional Block Diagrams
29
Service
Periodic Maintenance
Contents
Schematics
Illustrated Parts
Installation
P2
J1
Table/Generator
Interface PCB
881569
ISA
Half Size
CPU PCB
Backplane
881740
Image
Intensifier
Motron
CPU PCB
PS1
+/- 5, +/- 12
II PS
P1
Table
Std. 901570-01
Rev. 901570-02
Table
Footswitch
TP1
+12V
TP2
+5V
TP3
-12V
TP4
CCD
Camera
Optics
Heat Pipe
Power
Distribution
PCB
881572
PS2
T2
Video
Standards
Converter
Video & Pilot Tone
to Workstation
Flat Panel
Monitor
Power
Supply
Motion
Control
Table
Hand Control
X-ray
Footswitch
Voice Control
(Future)
Generator
J4
P3
ArcNet / Frame Sync
ArcNet to/from Collimator Interface PCB
and Interconnect Cable
To Motron CPU PCB
XCC_SCRTY
XRAY_SCRTY
COLL_SCRTY
J5
Data
Address
Control
Table_FO
U16
U6
ULANC &
RS485 Transc.
U3
RS485
Transc.
Communication
Ports
U7
Manchester
Decoder
& RS485
Transc.
U2
U28
Manchester
Decoder
& RS485
Transc.
U4
Camera Motor
Drivers & PWM
U25
U26
U40
Fiber
Optic
Receiver
Link
Fiber
Optic
Receiver
& Xmtr
Links
Opto
Isolators
U36
U57
U56
U55
Decoder
U35
Generator
Interface
Status LEDs
U12
U11
U5, U15
U22, U21
U9
P20 J20
Backpack
TP70
+12V
TP53
+5V
T64
-12V
TP44,47,55,33
Security
Lines
K1
U15
U30
U38
Flash
Memory
Page 2 of 7
For Reference Only
07/01
SYS_CPUs.DS4
2800
System CPUs
Table/Generator Interface PCB
g
X19
CAN Bus &
RTL Lines
System CPUs – Table/Generator Interface PCB