EasyManua.ls Logo

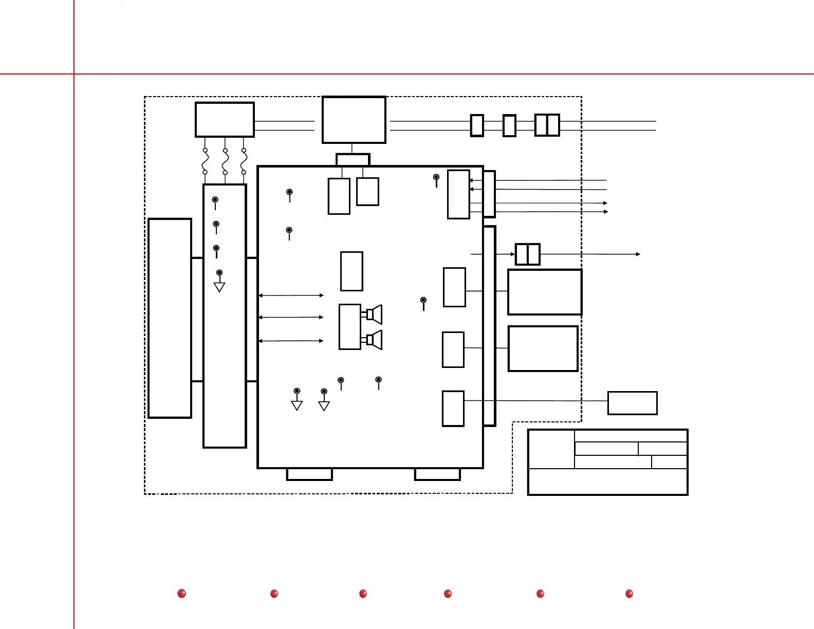
OEC UroView 2800 - Collimator Control - Functional Diagram

Default Icon
91 pages
Print Icon
To Next Page IconTo Next Page
To Next Page IconTo Next Page
To Previous Page IconTo Previous Page
To Previous Page IconTo Previous Page
Loading...
OEC UroView
®
2800 Table/Generator Functional Block Diagrams
86
Service
Periodic Maintenance
Contents
Schematics
Illustrated Parts
Installation
J2
P3
ARCNET_HI
P4
P5
P6
JTAG
Test Port
Collimator Interface PCB
881541
ISA
Half Size
CPU PCB
Backplane
881740
VFD
(vacuum
fluorescent
display)
Control Panel
Switch Matrix
and LEDs
PS4
Collimator
901620
J1
Collimator Housing
115VAC_PH_PS4
115VAC_RTN_PS4
ARCNET_LO
COLL_SCRTY
115VAC_PH_PS4
115VAC_RTN_PS4
J10/P10
TP1
+12V
TP2
+5V
TP3
-12V
TP4
F3
2A
F2
6.3A
F1
1A
+5V
-12V
+12V
Data
Address
Control
U6
U7
U23
U8
U3
U11
Switch
Matrix
PLD
LED
Output
Ports
ULANC
&
RS485
Transc.
Programmble
Quad UART
TP11
+12V
TP7 & 10
TP5
+5V_Analog
TP8
3.68 MHZ
TP4
20MHZ
TP3
CNTHOLD
TP1
5MHZ
LS1
LS2
TP6
D
A
U20
U13
ARCNET_HI
ARCNET_LO
TB5
LF2
J6 P6
(mounted to tube
support arm)
U15
U16
Flash
Memory
U5
Collimator
Interface
U2
U4
X-ray Tube
X-ray Tube Hi & Lo
X-ray Tube
Temperature
Sensing Interface
From Table/Generator
Interface PCB
To X-ray Control
Interface PCB
To Table/Generator
Interface PCB
From Collimator
Switch Matrix
Page 1 of 2
28COLCNT.DS4
Collimator Control
Functional Diagram
07/01
2800
GE OEC Training
g
Collimator Control – Functional Diagram