EasyManua.ls Logo

OJ Electronics WLTA - System Service Menu

OJ Electronics WLTA
32 pages
Print Icon
To Next Page IconTo Next Page
To Next Page IconTo Next Page
To Previous Page IconTo Previous Page
To Previous Page IconTo Previous Page
Loading...
11
Service Menu
Master with Display Type WLM2
55ºC
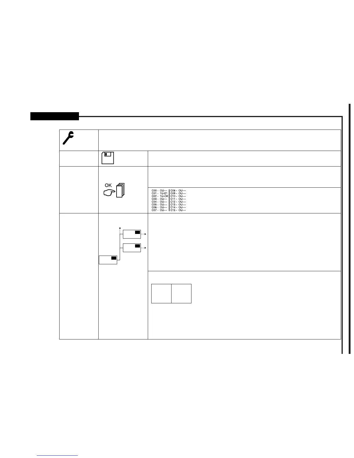
Service menu
Push accept to enter
The controller will automatically return to main menu after 30 minutes.
2.0 Software version
OK no failures
E0 to E11 if a failure is present. See page 13 for explanation.
LS= Low signal on wireless room sensors/controllers
LB= Low battery on wireless room sensors/controllers Submenu 2
Push accept to enter and see which unit has the failure
Submenu 2a
Network Status (normally hidden)
If a network master detects a network this menu entry is shown.
Here it is possible to check the status of the network.
“TOTAL X”: Shows how many masters the network master detects.
(x is the amount of connected masters)
“NET OK” No errors detected in the network
“ERROR ON IDxx” Shows if any of the attached masters has local errors.
(IDxx tells which master it concerns. The ID number is
what the encoder on the master is set to)
“NET ERROR” Tells that one or more masters on the network has
stopped communicating. Please use the menu entry
below to check which masters it concerns
Push accept to enter and see which master it is that has the error and what error it is.
Using the “up” and “down” button, select which masters status should be shown on the right side of the display.
>ID11 - ?
ID12 - ?
ID21 - ?
E:CHANNEL
Possible Errors:
“LOADING STATUS...” : Receiving information from the network.
“STATUS OK”: No errors detected
“NET-COMM ERROR” : Communication is missing to that master. Please check the connection or remove
the master from memory with a hard reset.
“E1-E11”: The same errors as shown in section “Error Indication” under “Flashing Power LED”
“E:CHANNEL”: This is a channel error which has to be checked locally on that master.
TOTAL X

Other manuals for OJ Electronics WLTA

Related product manuals