EasyManua.ls Logo

Oki B431L6 - Page 137

Oki B431L6
184 pages
Print Icon
To Next Page IconTo Next Page
To Next Page IconTo Next Page
To Previous Page IconTo Previous Page
To Previous Page IconTo Previous Page
Loading...
7. Connection Diagram
Oki Data CONFIDENTIAL
44983601TH Rev.1
7-2 /
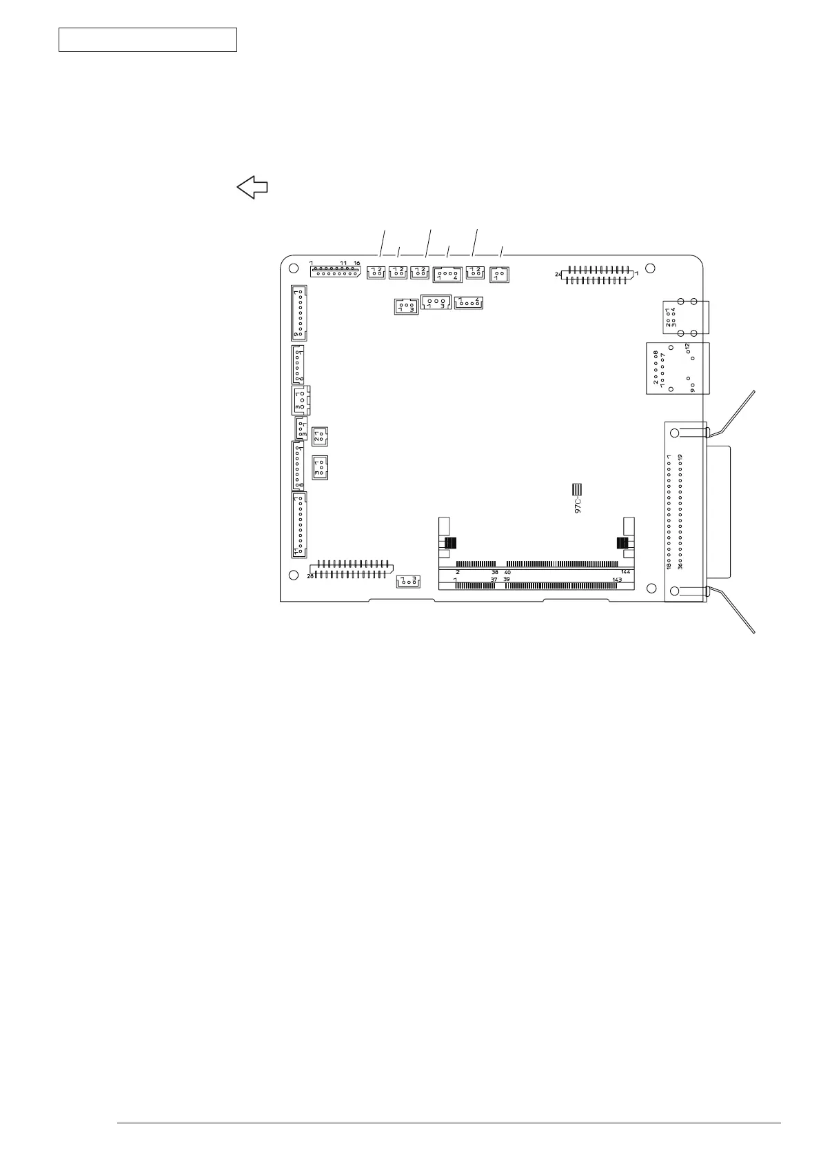
7.2 Board Layout
(1) Main control board
The front side of the printer.
CENT
LAN
USB1
DM
IN_WR
PWFAN1
PAP
2ND
POWER
DFAN1
SWRL
HVIF
IL DIMM
LCDPNL
MCLT RCLT FACEUP
EXIT
RCO
TONER
HCLT EXITM THERM
HEAD0

Related product manuals