EasyManua.ls Logo

Olympic 50 - Page 20

Olympic 50
23 pages
Print Icon
To Next Page IconTo Next Page
To Next Page IconTo Next Page
To Previous Page IconTo Previous Page
To Previous Page IconTo Previous Page
Loading...
JP2
i
|
|
!
i
1
qo
+5V
4.7
pf
1
|
A
D
?
+
051
!
|
1
og
PROGRAM
|
JP3
JP2
|
|
C52
i
|
is
bh
ms
LEIO
i
|
|
25
А
12
|
Bv
y
28
2
+
|
|
cc
Yop
ss
NC
Vec
GND
|
1
1
1
2
xTAL
1
ALE
20
|
6.
DEO
LIZ
ALE/CE
!
I
OMHZ
Dei
LS
£
A0
I
i
=
χο
ϱ82
{14
zy
Al
!
I
083
[15
5-
A2
!
i
OS
084
[18
43
013
1
G
u“
F
me
085
Hz
ae
|
|
+
+
4
RESET
oss
118
=]
AS
87064
+5Vp
|
|
=
087
119
A6
o
|
|
tHE
31
A7
1
!
1.0
pF
n
1
|
|
U12
12
εν
Vpp
|
13
i
DATA
VALID
ot
dos
τει
02
|
|
TO—
BYTE
EN
Ot
P26
TE
05
1
la
TE
EN
Ρ27
17]
04
1
İÇ
SIGN/BIT
8
7
151
95
27
1
iz
BIT
15/7
oO-
ts
19]
08
GM
|
|
=
BIT
14/6
ots
Q7
|
BIT
13/5
SP
p
21
ig
BIT
12/4
ο
30
1p13
p21
[22
25
28
|
|
BT
11/3
o
P12
p22
{23
5
A9
I
|
BIT
10/2
o
28
|p11
P23
[24
77
510
1
|
BT
8/1
Ро
All
I
T
oe
24
412
|
|
DE
1
8063
|
R55
9
9
22
[
1
+5,
=
vee
5]
=
M
1
|
2.2K
25
+54
|
|
-
no
3155
PROG
>
|
10
C56
i
NC
9
wa
|
|
R56
5
+5%
|
15
2.2K
Ш
1
με
i
.
24
12
Ею
UFF
TO
SHT
1
1
1
3
W
AAA
T
Усс
GND
|
ic
7
|
=
Ty
BROS
P70
Js
|
|
gx
$
$
$
10)
p21
I
:
TYP
P22
NC
—4
1]
NC
|
1
Te
8
MEM
BNK
)
B)
P23
|
ANI
U15
NC
—İ2)
nc
i
A
-一
7
CALIB
NC
——1
3!
NC
|
8]
7
4|
3|
2
82043
DS1201
NC
18
νο
3!
=
1
!
og
E
DSP
TEST
en
L4
2
me
NC
—]19
NC
|
oo
ls
sor
221
ps2
paz
15
3]
bo
ne
20
νο
i
DATE
15
4
U16
Y
$1
21)
os,
P72
CLK
=
17
P63
5
GND
KG/LB
Sw
14
23
LK/UN
LK
SW|12
16
Р51
ZERO
SW
P73
2
à
WO
BAT
1]
pso
P40
5|
DIS
DRV
1
FROM
TO
BAT
o—
19
bg:
aa
4
|
DIS
DRV
2
Ls
SHT
1
TE
©
20|
260
P42
6|
DIS
CLK
|
AC
ON
o
18
P62
R62
SEPARATE
-
DIG
GND
1
10K
m
q
cs
BIG.
GND
L
46
06
GND
4
|
6
+5Vp
_
+5Vp
р.
~
+5Vp
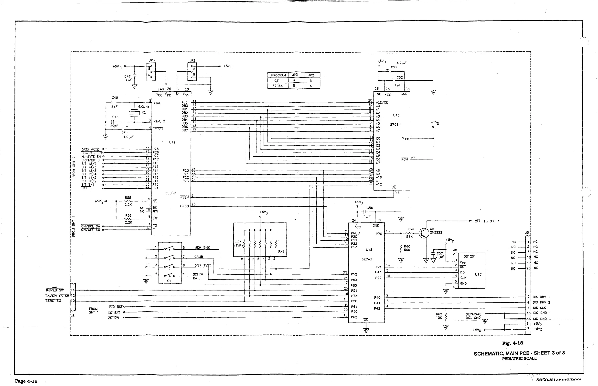
Fig.
418
SCHEMATIC,
MAIN
PCB
-
SHEET
3
of
3
PEDIATRIC
SCALE
Page
4-15
SSAN-NT
9O9NT7DANO)