EasyManua.ls Logo

OMA 526 - Specifications; Capacity and Dimensions; Electric Motor Details; Pump Specifications

OMA 526
53 pages
Print Icon
To Next Page IconTo Next Page
To Next Page IconTo Next Page
To Previous Page IconTo Previous Page
To Previous Page IconTo Previous Page
Loading...
CAP.2. SPECIFICHE TECNICHE
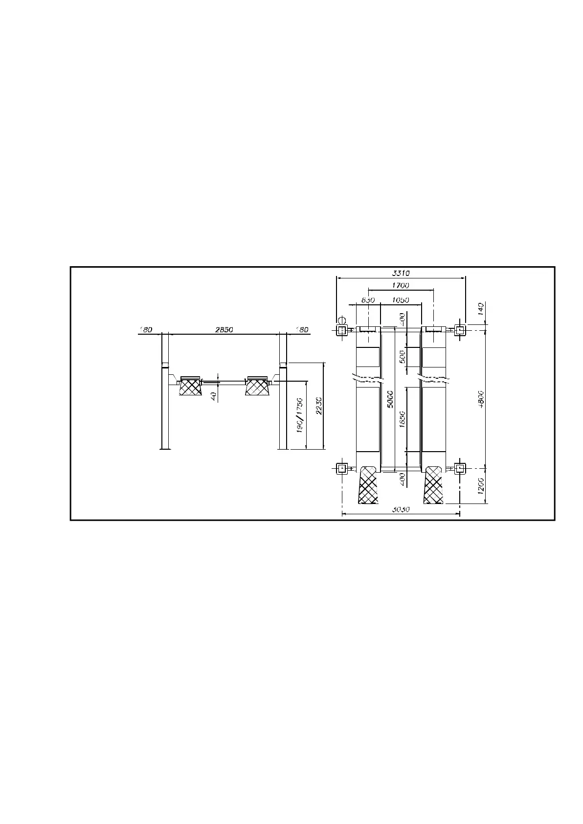
POR TA TA: ................................................4000 kg (39240 N)
Alt. max. sol le va men to auto ......................1750 mm
Alt. min. sup por ti sol le va men to .................190 mm
In ter as se lon gi tu di na le co lon ne .................4800 mm
In ter as se tra sver sa le co lon ne...................3030 mm
Lar ghez za li be ra tra co lon ne .....................2850 mm
Lar ghez za pe da ne.....................................625 mm
Lun ghez za pe da ne ....................................5000 mm
Tem po di sa li ta ..........................................50 sec
Tem po di di sce sa ......................................45 sec.
FUNE di sol le va men to in ac ciaio, con le se guen ti ca rat te ri sti che:
Dia me tro ....................................................11 mm
Nu me ro di fili .............................................227
Re si sten za dei fili ......................................1960 N
Dia me tro pri mi ti vo pu leg ge........................220 mm
Ru mo ro si tà ................................................70dB(A)/1m
PESO to ta le del sol le va to re .....................cir ca 1030 Kg
Tem pe ra tu ra di fun zio na men to .................-10°C / + 50°C
Ambiente di lavoro: locale chiuso.
Fig.11 - Di men sio ni ed in gom bri
MOTORE ELETTRICO
Tipo ...........................................................C90
Po ten za .....................................................2.2 KW
Ten sio ne....................................................230- 400V trif. +/-5%
Fre quen za .................................................50 Hz
N° poli........................................................4
Ve lo ci tà......................................................1400 giri/1’
For ma co strut ti va.......................................B 14
Clas se iso la men to .....................................F
As sor bi men to ............................................230V: 11A
..................................................................400V: 6,4A
Il collegamento del motore deve essere eseguito riferendosi
agli schemi elettrici allegati.Il senso di rotazione del motore è
sinistro (antiorario) come indicato nella targhetta applicata sul
motore stesso.
POMPA
Tipo ...........................................................18
Mo del lo......................................................10A5X348N
Ci lin dra ta ...................................................5 cm3 /g
Tra smis sio ne: tipo di giun to.......................TR04
Pres sio ne di la vo ro con ti nua ti va ................210 bar
Pres sio ne di la vo ro in ter mit ten te ...............230 bar
Pres sio ne di pic co .....................................250 bar
CHAPTER 2 SPECIFICATIONS
CA PA CITY:...............................................4000 kg (39240 N)
Max. vehic le lif ting height ..........................1750 mm
Min. ground clea ran ce of lift struc tu re .......190 mm
Lon gi tu di nal C/C di stan ce betwe en posts .4800 mm
Transver se C/C di stan ce betwe en posts...3030 mm
Ef fec ti ve clea ran ce betwe en posts ............2850 mm
Plat form width............................................625mm
Plat form length ..........................................5000 mm
Lift time ......................................................50 sec
Lowe ring time ............................................45 sec
LIF TING CABLES in steel, ha ving the fol lowing fea tu res:
Dia me ter....................................................11 mm
Strands......................................................227
Ten si le strength of strand..........................1960 N
Pul ley pitch dia me ter .................................220 mm
Noi se......................................................... 70dB(A)/1m
OVERALL WEIGHT of lift unit...................1030 kg ap prox.
Wor king tem pe ra tu re ran ge .......................-10°C / + 50°C
Installation requirements: enclosed area.
Fig.11 - Overall di men sions and clea ran ces
MOTOR
Type .......................................................... C90
Power ........................................................2.2 kW
Vol ta ge ......................................................230- 400V th.-ph. +/-5%
Fre quency .................................................50 Hz
Po les ......................................................... 4
Speed ........................................................1400 rpm
Buil ding shape...........................................B 14
In su la tion class..........................................F
Ab sorp tion .................................................230V: 11A
..................................................................400V: 6.4A
When connecting the motor refer to the enclosed wiring
diagrams.
The motor has left-handed rotation (counter-clockwise) as
shown on the data plate on the casing.
PUMP
Type ...................................................................18
Mo del ..................................................................10A5X348N
Di spla ce ment ......................................................5 cc/rev.
Tra smis sion: tipo di giun to.................................. TR04
Con ti nuous wor king pres su re .............................210 bar
In ter mit tent wor king pres su re..............................230 bar
Peak pres su re .....................................................250 bar
9

Related product manuals