EasyManua.ls Logo

Omron C200HG-CPU43 - Page 132

Omron C200HG-CPU43
241 pages
Print Icon
To Next Page IconTo Next Page
To Next Page IconTo Next Page
To Previous Page IconTo Previous Page
To Previous Page IconTo Previous Page
Loading...
Appendix BSpecifications
120
Optional Products
Name Specifications Model number
I/O Unit Cover Terminal cover for 8-point or 5-point I/O Units C200H-COV11
Connector Cover Protective cover for unused Backplane connectors C500-COV01
Space Unit Used to hold space for an I/O Unit. C200H-SP001
Note 1. When ordering, specify the model name (any component of which is not sold separately).
2. Order the press-fit tool from the manufacturer.
Standard I/O Units
DC Input Unit C200H-ID211
Rated Input Voltage 12 to 24 VDC
Operating Input Voltage 10.2 to 26.4 VDC
Input Impedance
2 kW
Input Current 10 mA (at 24 VDC)
ON Voltage 10.2 VDC min.
OFF Voltage 3.0 VDC max.
ON Response Time 1.5 ms max. (at 24 VDC, 25°C)
OFF Response Time 1.5 ms max. (at 24 VDC, 25°C)
No. of Circuits 1 (8 point/common)
Internal Current Consumption 10 mA 5 VDC max.
Weight 200 g max.
Dimensions A-shape
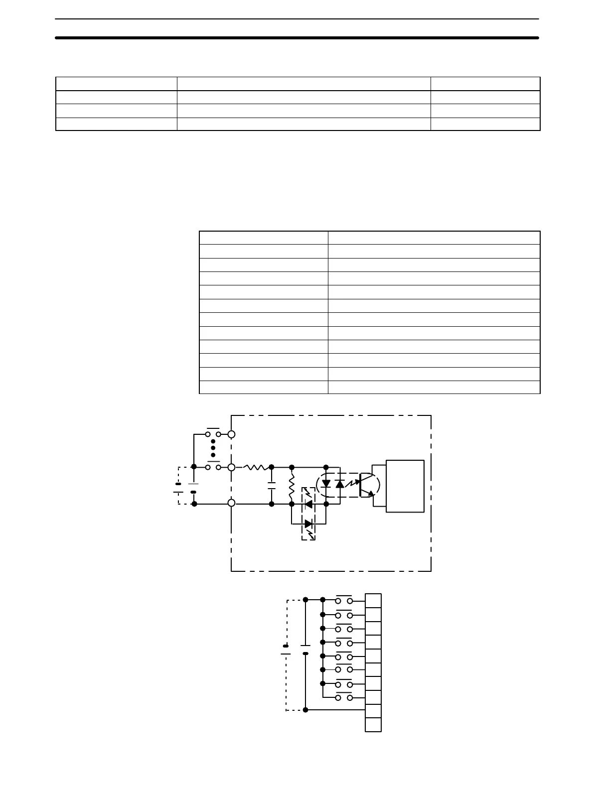
Circuit Configuration
IN
IN
COM
Internal
Circuit
12 to 24 VDC
2 kW
0.01
mF
Input indicator
1.8
k
W
Terminal Connections
COM
12 to 24 VDC
A0
A1
A2
A3
A4
A5
A6
A7
A8
A9
0
1
2
3
4
5
6
7
NC

Table of Contents

Other manuals for Omron C200HG-CPU43

Related product manuals