EasyManua.ls Logo

Omron C200HG-CPU43 - Page 157

Omron C200HG-CPU43
241 pages
To Next Page IconTo Next Page
To Next Page IconTo Next Page
To Previous Page IconTo Previous Page
To Previous Page IconTo Previous Page
Loading...
Appendix BSpecifications
145
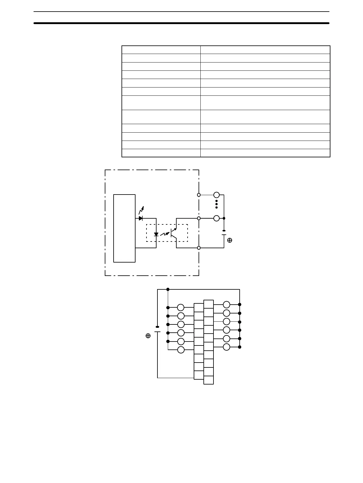
Transistor Output Unit C200H-OD217
Max. Switching Capacity 0.3 A 5 to 24 VDC
Min. Switching Capacity 10 mA 5 VDC
Leakage Current 0.1 mA max.
Residual Voltage 1.5 V max.
ON Response Time 1.5 ms max.
OFF Response Time 2 ms max.
No. of Circuits 1 (12 points/common) positive common (source
type)
Internal Current Consumption 10 mA 5 VDC max. 75 mA 26 VDC (8 points ON
simultaneously.)
Fuse Rating None
Power for External Supply N/A
Weight 300 g max.
Dimensions B-shape
Circuit Configuration
Internal
Circuit
Output indicator
OUT
OUT
COM
L
L
5 to
24 VDC
Terminal Connections
A0
A1
A2
A3
A4
A5
A6
A7
A8
1
3
5
7
9
11
COM
5 to 24 VDC
NC
B0
B1
B2
B3
B4
B5
B6
B7
B8
B9
NC
NC
NC
NC
NC
0
2
4
6
8
10
L
L
L
L
L
L
L
L
L
L
L
L

Table of Contents

Other manuals for Omron C200HG-CPU43

Related product manuals