EasyManua.ls Logo

Omron C200HG-CPU43 - 12 VDC Input;Transistor Output Unit C200 H-MD115 Specifications

Omron C200HG-CPU43
241 pages
Print Icon
To Next Page IconTo Next Page
To Next Page IconTo Next Page
To Previous Page IconTo Previous Page
To Previous Page IconTo Previous Page
Loading...
Appendix BSpecifications
169
DC Input Unit C200H-ID215 (32 Points)
Rated Input Voltage 24 VDC
Operating Input Voltage 20.4 to 26.4 VDC
Input Impedance
5.6 kW
Input Current 4.1 mA (at 24 VDC)
ON Voltage 14.4 VDC min.
OFF Voltage 5.0 VDC max.
ON Response Time 2.5 ms/15 ms max. (switchable; at 24 VDC, 25°C)
OFF Response Time 2.5 ms/15 ms max. (switchable; at 24 VDC, 25°C)
No. of Circuits 4 (8 points/common)
High-speed Inputs 8 points (connector 2 terminals 8 to 15, when set)
Pulse width: 1 ms/4 ms min. (switchable)
Internal Current Consumption 130 mA 5 VDC max.
Weight 300 g max.
Dimensions 130×34.5×100.5 (H×W×D, in millimeters)
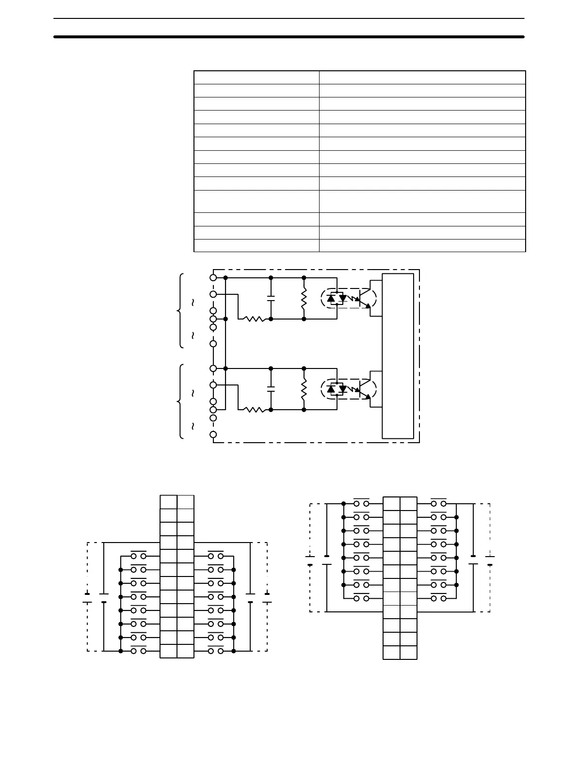
Circuit Configuration
1000 pF
620 W
5.6 kW
COM0
IN00
IN07
COM1
IN08
IN15
CN1
Internal
Circuit
COM2
IN00
IN07
COM3
IN08
IN15
CN2
1000 pF
620 W
5.6 kW
Terminal Connections
I/O word “n”
CN1
I/O word “n+1”
CN2
B
1
2
3
4
5
6
7
8
9
0
1
2
3
4
5
6
7
COM0
+
NC
10
NC
11
NC
NC
8
9
10
11
12
13
14
15
COM1
+
24 VDC
AB
0
1
1
2
2
3
3
4
4
5
5
6
6
7
7
8
COM2
9
8
9
10
11
12
13
14
15
COM3
+
+
NC
10
NC
11
NC
NC
NC
12
+
A
1
2
3
4
5
6
7
8
9
10
11
12
NC
+
24 VDC
NC
12
NC
+
24 VDC
+
24 VDC
1
2
3
4
5
6
7
8
9
10
11
12
Note 1. I/O word “n” is determined by the unit number setting (n = IR 100 + 10 × unit number).
2. When pin 2 of the Unit’s DIP switch is ON, input points 08 to 15 in connector 2 are high-speed inputs.
3. At high temperatures, the number of inputs that can be turned ON simultaneously is limited. Refer to the
graphs on the following page for details.

Table of Contents

Other manuals for Omron C200HG-CPU43

Related product manuals