EasyManua.ls Logo

Omron C200HG-CPU43 - Page 198

Omron C200HG-CPU43
241 pages
To Next Page IconTo Next Page
To Next Page IconTo Next Page
To Previous Page IconTo Previous Page
To Previous Page IconTo Previous Page
Loading...
Appendix BSpecifications
186
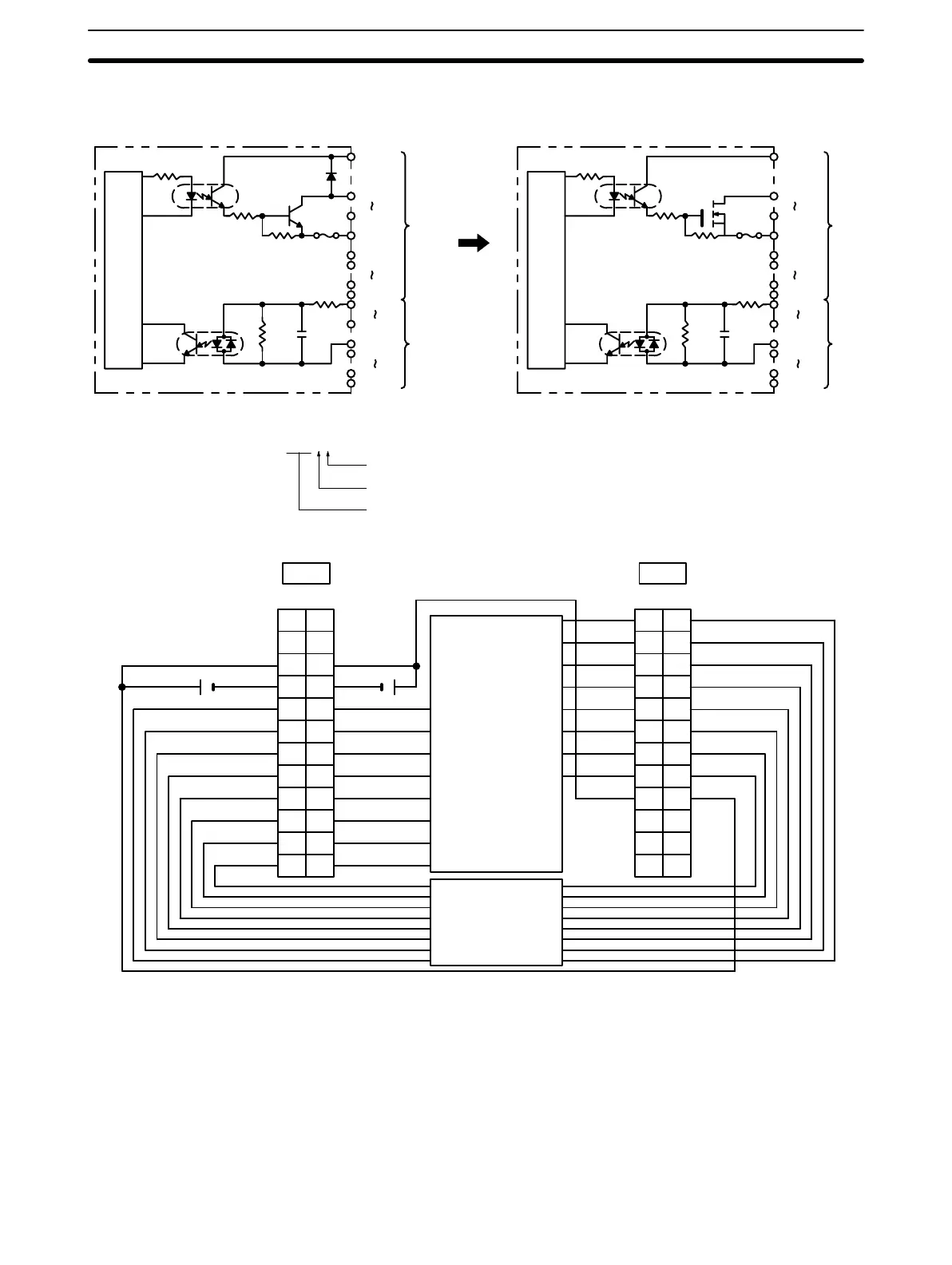
Circuit Configuration
Units manufactured on or before November 29th, 1999
(manufacturing numbers 29Y9 or earlier*)
Units manufactured on or after November 30th, 1999
(manufacturing numbers 30Y9 or later*)
STB00
STB07
COM0
STB08
STB15
COM1
COM2
DATA08
DATA15
COM3
DATA00
DATA07
CN1
CN2
Internal
Circuit
Fuse
5.6 kW
24 VDC
24 VDC
1,000 pF
620 W
STB00
STB07
COM0
STB08
STB15
COM1
COM2
DATA08
DATA15
COM3
DATA00
DATA07
CN1
CN2
Internal
Circuit
Fuse
24 VDC
24 VDC
10 k
8.2 k
15 k
6.8 k
5.6 kW
1,000 pF
620 W
*Manufacturing Numbers
jjY9
Year: Last digit of calendar year; e.g., 19999, 20000
Month: 1 to 9 (January to September), X (October), Y (November), Z (December)
Day: 01 to 31
Terminal Connections
12 VDC
STB8
STB9
STB10
STB11
STB12
STB13
STB14
STB15
DATA8
A
1
2
3
4
5
6
7
8
9
DATA0
DATA1
DATA2
DATA3
DATA4
DATA5
DATA6
DATA7
COM2
NC
10
NC
11
NC
NC
NC
12
B
1
2
3
4
5
6
7
8
9
10
11
12
NC
CN2
A
1
2
3
4
5
6
7
8
9
COM1
+V0
10
NC
11
+V1
NC
STB0
STB1
STB2
STB3
STB4
STB5
STB6
STB7
COM0
NC
12
B
1
2
3
4
5
6
7
8
9
10
11
12
NC
CN1
DATA9
DATA10
DATA11
DATA12
DATA13
DATA14
DATA15
COM3
+ +
12 VDC
Keyboard,
thumbwheel
switch, etc.
Keyboard,
thumbwheel
switch, etc.
Note 1. Refer to the Unit’s Operation Manual for details on I/O bit allocation.
2. The Unit will have 128 dynamic output points when pin 1 of it’s DIP switch is ON.
3. Each output terminal has an output resistance of 4.7 kW.
4. At high temperatures, the number of inputs that can be turned ON simultaneously is limited. Refer to the
graph on the next page for details.
5. The user is not authorized to change the fuse.
6. When wiring output circuits, be sure to use the correct polarity for the external power supplies. Wiring
with incorrect polarity may result in erroneous operation of the load.

Table of Contents

Other manuals for Omron C200HG-CPU43

Related product manuals