EasyManua.ls Logo

Omron C200HG-CPU43 - Page 200

Omron C200HG-CPU43
241 pages
To Next Page IconTo Next Page
To Next Page IconTo Next Page
To Previous Page IconTo Previous Page
To Previous Page IconTo Previous Page
Loading...
Appendix BSpecifications
188
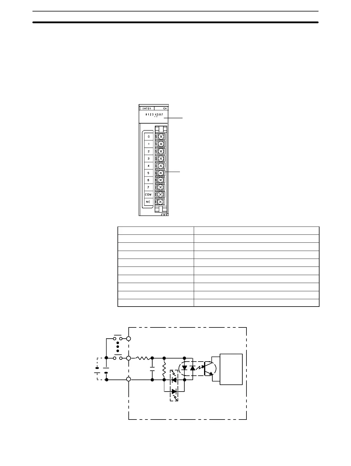
C200HS-INT01 Interrupt Input Unit
The Interrupt Input Unit temporarily interrupts the main program by means of in-
puts, and executes interrupt subroutines. It must be mounted to a
C200HX/C200HG/C200HE CPU Rack, and a maximum of two Interrupt Input
Units can be mounted on the Rack. (It is possible to mount it to an Expansion I/O
Rack, but in that case it will be treated as a Standard Input Unit and will have no
interrupt functions.) Use a C200HW-BCjj1 Backplane. The word number of
the slot position to which the Unit is mounted is allocated as eight input points.
Operation display area:
Displays the ON/OFF status of interrupts.
Terminal block:
Consists of removable components.
Rated Input Voltage
12 to 24 VDC
+10%
/
–15%
Input Impedance 2 K
Input Current 10 mA typical (24 VDC)
ON Voltage 10.2 VDC min.
OFF Voltage 3.0 VDC max.
ON Response Time 0.2 ms max.
OFF Response Time 0.5 ms max.
No. of Circuits 1 (8 points/common)
Internal Current Consumption 20 mA, 5 VDC max.
Weight 200 g max.
Circuit Configuration
IN
IN
COM
Internal
Circuit
12 to 24 VDC
2 kW
0.01
mF
Input indicator
1.8
k
W
Either plus or minus can be used for the input power supply.

Table of Contents

Other manuals for Omron C200HG-CPU43

Related product manuals