EasyManua.ls Logo

Omron H3CR-A - Page 105

Omron H3CR-A
326 pages
To Next Page IconTo Next Page
To Next Page IconTo Next Page
To Previous Page IconTo Previous Page
To Previous Page IconTo Previous Page
Loading...
H3DR-H
H3DR-H
105
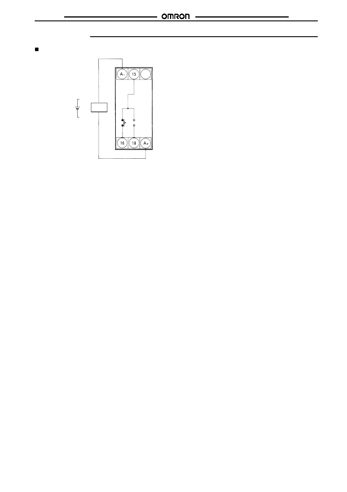
Installation
Terminal Arrangement
Power
supply
+
--

Other manuals for Omron H3CR-A

Related product manuals