EasyManua.ls Logo

Omron R88D-KT Series - Page 73

Omron R88D-KT Series
634 pages
To Next Page IconTo Next Page
To Next Page IconTo Next Page
To Previous Page IconTo Previous Page
To Previous Page IconTo Previous Page
Loading...
2-28
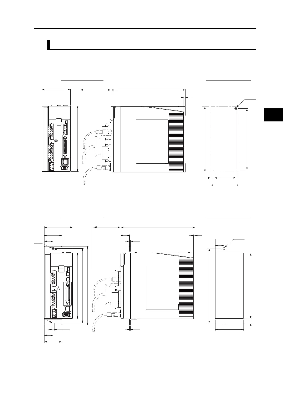
2-4 External and Mounting Dimensions
OMNUC G5-SERIES AC SERVOMOTOR AND SERVO DRIVE USER'S MANUAL
2
Standard Models and External Dimensions
Single-phase/3-phase 100 VAC: R88D-KT04L (400 W)
Single-phase/3-phase 200 VAC: R88D-KT08H (750 W)
Wall Mounting
External dimensions Mounting dimensions
Front Mounting (Using Front Mounting Brackets)
External dimensions Mounting dimensions
* Rectangular hole dimensions are reference values.
170
4
65
150
150
140
50
7.5
65
70
2-M4
Rectangular
hole
65
40
20
φ5.2
R2.6
20
40
5.2
180
170
150
170
4
2.5
19.5
2.5
170
21
70
2-M4
(67)*
6
(158)*

Table of Contents

Related product manuals