EasyManua.ls Logo

Onkyo TX-NR900E

Onkyo TX-NR900E
82 pages
To Next Page IconTo Next Page
To Next Page IconTo Next Page
To Previous Page IconTo Previous Page
To Previous Page IconTo Previous Page
Loading...
TX-NR900/E
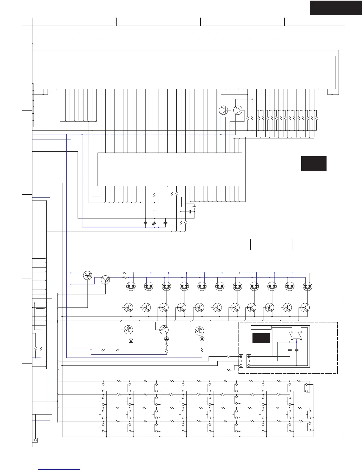
SCHEMATIC DIAGRAM 1-2 Sub-microprocessor and display sections
JL7201A
P7559B
P7559A
Q7504
Q7503
2SC2712
or
KTC3875
NP
NP
NP
NP
NP
NP
P36
F2
F2
NP
NP
P35
P34
P33
P32
P31
P30
P29
P28
P27
P26
P25
P24
P23
P22
P21
P20
P19
P18
P17
P16
P15
P14
P13
P12
P11
P10
P9
P8
P7
P6
P5
P4
P3
P2
P1
16G
15G
14G
13G
12G
11G
10G
9G
8G
7G
6G
5G
4G
3G
2G
1G
NP
NP
F1
F1
Q7501
HNA-16MM40T
1
2
3
4
5
6
7
8
9
10
11
12
13
14
15
16
17
18
19
20
21
22
23
24
25
26
27
28
29
30
31
32
33
34
35
36
37
38
39
40
41
42
43
44
45
46
47
48
49
50
51
52
53
54
55
56
57
58
59
60
61
62
63
64
65
66
D7533
STANDBY
D7534
UPSPL
D7535
PURE AUDIO
S7569
VOLUME
D7521
SML1216C
DVD
D7522
V1
D7523
V2
D7524
V3
D7525
V4
D7526
V5
D7527
T1
D7529
TU
D7530
PH
D7531
CD
D7532
NET
Q7536
KTC3875 or
2SC2712
Q7524
Q7533
Q7534
Q7535
Q7532Q7521
KRC102S or RN1402
Q7522 Q7523 Q7525 Q7526 Q7527 Q7529 Q7530 Q7531
Q7502
M66005FP
DIG0112
DIG0211
DIG0310
DIG049
DIG058
DIG067
DIG076
DIG085
DIG094
DIG103
DIG112
DIG121DIG1364
DIG14 63
DIG15 62
DIG16 6
1
P0
18
P117
SCK15
SDATA16
SEG01 59
SEG02 58
SEG03 57
SEG04 56
SEG05 55
SEG06 54
SEG07 53
SEG08 52
SEG09 51
SEG10 50
SEG11 49
SEG12 48
SEG13 47
SEG14 46
SEG15 45
SEG16 44
SEG17 43
SEG18 42
SEG19 41
SEG20 40
SEG21 39
SEG22 38
SEG23 37
SEG24 36
SEG25 35
SEG26 34
SEG27 33
SEG2831
SEG2930
SEG3029
SEG3128
SEG3227
SEG3326
SEG3425
SEG3524
SEG3623
VCC119
VCC2 60
VP32
VSS22
XIN21
XOUT20
~CS14
~RESET13
D7501 UDZ11B
C7506
474J
C7510
33/50
C7503
100/6.3
C7505
104Z
C7509 474Z
C7502 474Z
C7508
101J
C7507
104Z
C7504
101J
C7559
104Z
C7569
104Z
S7559
DISPLAY
S7578
TUNING UP
S7577
TUNING
DOWN
S7576
MENU
S7575
MEMORY
S7574
FM MODE
S7541
STANDBY
/ON
S7571
DSP <
S7572
DSP >
S7573
PTY/TP
DIMMER
S7579
ENTER
S7551
TAPE
S7549
VIDEO 5
S7548
VIDEO 4
S7547
VIDEO 3
S7546
VIDEO 2
S7545
VIDEO 1
S7544
DVD
S7543
AUDIO SEL
S7542
PUREAUDIO
S7558
PRESET <
S7557
PRESET >
S7556
EXIT
S7554
CD
S7555
NET
S7553
PHONO
S7552
TUN
S7565
OFF
S7564
ZONE 2
S7563
REC
S7566
STEREO
S7562
Z2 LEVL>
S7567
SURROUND
S7561
Z2 LEVL<
S7568
THX
R7511 10K
R7512 10K
R7502 220
220
R7340 10K
R7339 10K
R7338 10K
R7316
1K
R7315
1K
R7578
12K
R7505
1K
R7506
1K
R7508
1K
R7507
1K
R7504
27K
R7574 330
R7577
3.9KR7576 2.2KR7575 1.2KR7573 820R7541 330 R7571 470 R7572 560
R7558 1
2K
R7551 1
2K
R7548
3.9KR7547 2.2KR7546 1.2KR7545 820R7544 560R7543 470R7542 330
R7540 4
70
R7534 4
70
R7526 10K
R7525
10K
R7524
10K
R7523
10K
R7522
10K
R7521
10K
R7520
10K
R7519
10K
R7518
10K
R7517
10K
R7516
10K
R7515
10K
R7514
10K
R7513
10K
R7567 3.9KR7566 2.2K
R7533
470
R7535
270
R7536
270
R7539
180
R7538
180
R7557
3.9K
R7564
820 R7565 1.2K
R7556 2
.2KR7555 1.2KR7554 820
R7563 5
60R7562 470R7561 330
R7553 5
60R7552 470
9G
8G
7G
6G
5G
4G
3G
2G
1G
+12V
P27
P26
P25
P24
P23
P22
P21
P20
P19
P18
P17
P16
P15
P14
P13
P12
P11
P10
P9
P8
P7
P6
P5
P4
P3
P2
P1
16G
15G
14G
13G
GND
-VP
P28
P29
P30
P31
P32
P33
P34
P35
P36
1G
2G
3G
4G
5G
6G
7G
8G
9G
10G
11G
12G
FLOSDDA
FLOSDCL
FL
CS1
FLR
ES
LEDGRE
LEDRED
RZV1
RZV5
RED
GREEN
RZV4
RZV3
RZV2 LEDGRE
VBJ
VAJ LEDRED
SUBREQ
RZDVD
RZV1
RZT1
RZAM
RZPH
RZCD
RZNET
MAINSCK
MAINSO
SUBSO
PURE
UPSPL
STBY
VBJ
NETRX
NETTX
VAJ
K0
K1
K2
K3
8)
NASW-7739
Q7521-Q7535
D7521-D7532
RED
GREEN
BLUE
GND
Q7537
KTC3875 or
2SC2712
RZV5
RZV4
RZV3
RZV2
14G
13G
12G
11G
10G
P36
P35
P34
P33
P32
P31
P30
P29
P28
U45
NADIS-7738
U44
A
1
2
3
4
5
BCD

Other manuals for Onkyo TX-NR900E

Related product manuals