EasyManua.ls Logo

Orbis COMFORTVIEW - Unit Mounting Instructions and Template

Orbis COMFORTVIEW
30 pages
Print Icon
To Next Page IconTo Next Page
To Next Page IconTo Next Page
To Previous Page IconTo Previous Page
To Previous Page IconTo Previous Page
Loading...
9
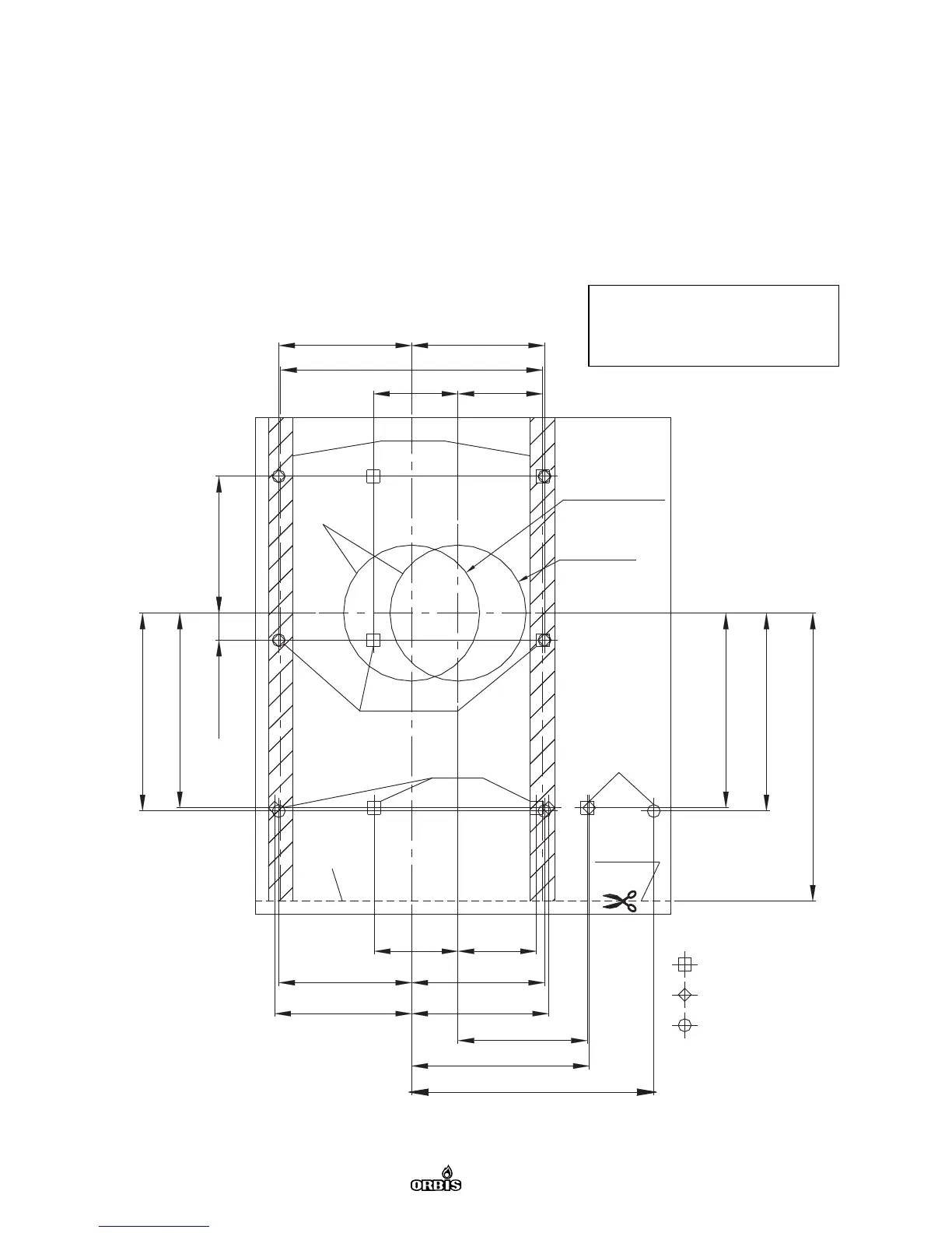
must be located so that the ORBIS Calorama/Comfort View Series Heater is installed
BETWEEN THE WALL STUDS (See Figure 4). It is NOT permissible to cut the wall studs in
order to install this unit. The wall studs can be used to mount the Calorama/Comfort
View II and Calorama/Comfort View III units to the wall in order to provide a secure
installation. The template is to be located directly on the floor surface or floor covering
such as carpeting or tile to provide the correct clearances from the bottom of the unit to
combustible materials. NEVER reduce the clearances from the finished unit to adjacent
combustible materials.
Figure 3: ALL MODELS –
Unit Mounting Instructions
8.35" (212 mm)
1.65" (42 mm)
11.89" (302 mm)
12.09" (307 mm)
10.85" (275.5 mm)
14.78" (375.5mm)
7.89" (200,5 mm)
4.8" (121.9 mm)
5.12" (130.1 mm)
8.37" (212.5 mm)
8.37" (212.5 mm)
8.12" (206.2 mm)
8.12" (206.2 mm)
HOLES FOR VENT
ASSEMBLY
17.6" (447 mm)
12.09" (307 mm)
11.89" (302 mm)
GAS SUPPLY
PIPING HOLES
HOLES FOR FIXING WALL
MOUNTING PLATE
HOLES
FOR FIXING OPTIONAL
BLOWERKIT
FLOOR
OR FLOOR MATERIALS
CUT OR FOLD ALONG
THIS LINE
8.12" (206.2 mm)
8.12" (206.2 mm)
5.17" (131.2 mm)
WALLSTUD
16" ON CENTER
ø 8.31" (ø 211mm)
CALORAMA/COMFORT VIEW II
&
CALORAMA/COMFORT VIEW III
ø 8.31" (ø 211mm)
CALORAMA/COMFORT VIEW I
5.17" (131.2 mm)
16" (406.4 mm) ON CENTER OF STUDS
NOTE: EACH SYMBOL CORRESPONDS
TO A DIFFERENT HEATER
CALORAMA / CCV III
CALORAMA / CCV II
CALORAMA / CCV I

Related product manuals