EasyManua.ls Logo

Orbit 57071 - Page 25

Orbit 57071
33 pages
Print Icon
To Next Page IconTo Next Page
To Next Page IconTo Next Page
To Previous Page IconTo Previous Page
To Previous Page IconTo Previous Page
Loading...
49
ESPAÑOL
48
lluvia y congelación al terminal neutro del temporizador.
5. Conecte los dos hilos rojos de 24 voltios a los
terminales de 24 voltios del temporizador.
Válvulas solenoide de 24 voltios (con bomba de carga)
Note: La salida del circuito de la bomba debe ser de 24 voltios en esta
situación; si es diferente, no continúe.
1. Quite del temporizador la tapa del terminal de cables
2. Compruebe si el tem-
porizador tiene termi-
nales sensor previa-
mente instalados. Si el
temporizador no tiene
terminales sensor, proce-
da con el paso 3. Si los
tiene, tome el cable del
receptor de lluvia y con-
gelación y conecte el hilo
blanco (neutro) a un ter-
minal sensor y el amarillo
(normal cerrado) al otro.
[Vea la Figura 5] Vaya
directamente al paso 5.
3. Desconecte del tem-
porizador los hilos neu-
tros de la válvula y
desconecte del terminal
neutro del temporizador
el cable neutro del relé
que pone en marcha la
bomba. Conéctelos al
hilo amarillo (normal cer-
rado) del receptor, uti-
lizando una tuerca para
hilos. [Vea la Figura 7]
4. Conecte el hilo blanco
(neutro) del receptor de
lluvia y congelación al
terminal neutro del tem-
porizador.
5. Conecte los dos hilos
rojos de 24 voltios a los
terminales de 24 voltios
del temporizador.
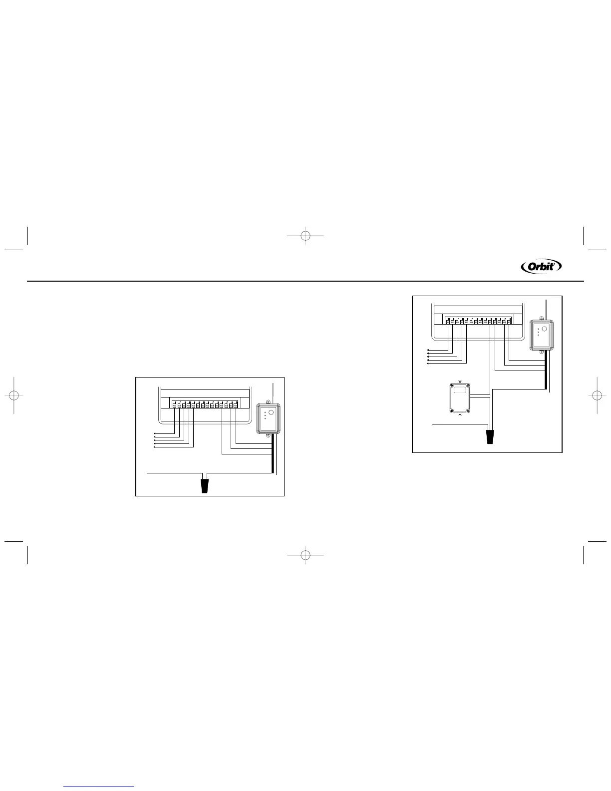
24V 24V
COM1 COM2
123456789
PUMP
Programadores de Riego
Hacia la válvula
Rojo
Rojo
Verde (No conectado)
Blanco
Hilo neutro que va a la
una tuerca para hilos
Amarill
Figura 6: Conexión de los cables entre el temporizador de
aspersor sin terminales de sensor y la bomba de carga
24V 24V
COM1 COM2
123456789
PUMP
Programadores de Riego
Hacia la válvula
Rojo
Rojo
Verde (No conectado)
Blanco
Hilo neutro que va a la válvula
una tuerca para hilos
Amarillo
Relé de
inicio de
bombeo
Figura 7: Conexión de los cables del temporizador de asper-
sor con la bomba de carga pero sin terminales del sensor
WTM230900 57071-24 rA.qxd 4/11/03 8:03 PM Page 48

Related product manuals