EasyManua.ls Logo

Ormazabal cgm.3 Series - Page 11

Ormazabal cgm.3 Series
88 pages
To Next Page IconTo Next Page
To Next Page IconTo Next Page
To Previous Page IconTo Previous Page
To Previous Page IconTo Previous Page
Loading...
IG-183-EN version 06; 31/03/2020
11
General instructions
cgm.3 system: medium voltage SF
6
gas-insulated
cubicles up to 38 kV according to IEEE and CSA standards
Description and main characteristics
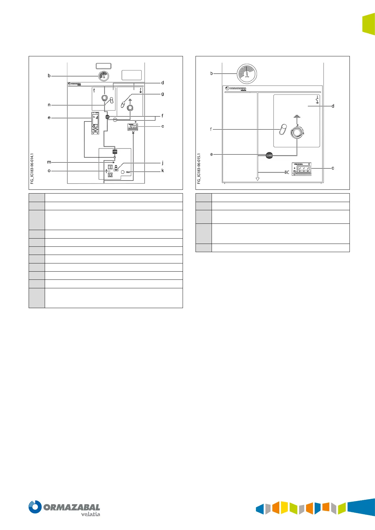
cgm.3-v
b
Pressure gauge window
c
Voltage presence indicator ekor.vpis / ekor.ivds
d
Operation area:
YELLOW for earthing switch
• GREY for switch-disconnector
e
ekor.rpg protection unit
f
Status indicators
g
Earthing switch actuating shaft access handle
j
Spring change indicator
k
Circuit-breaker manual spring change
m
Operation counter
n
Switch-disconnector actuating shaft access handle
o
Circuit-breaker operation area
• RED pushbutton for opening
• GREEN pushbotton for closing
Figure 1.12. Mimic diagram of cgm.3-v cubicles
cgm.3-rb-pt
b
Pressure gauge window
c
ekor.vpis / ekor.ivds voltage presence indication unit
d
Operation area:
YELLOW for earthing switch
e
Status Indicators
• GREEN open
• RED closed
f
Actuation shaft access handle
Figure 1.13. Mimic diagram of cgm.3-rb

Table of Contents

Related product manuals