EasyManua.ls Logo

Panasonic CS-E15PKR - 6 Refrigeration Cycle Diagram; Cu-E7 Pkr

Panasonic CS-E15PKR
205 pages
Print Icon
To Next Page IconTo Next Page
To Next Page IconTo Next Page
To Previous Page IconTo Previous Page
To Previous Page IconTo Previous Page
Loading...
35
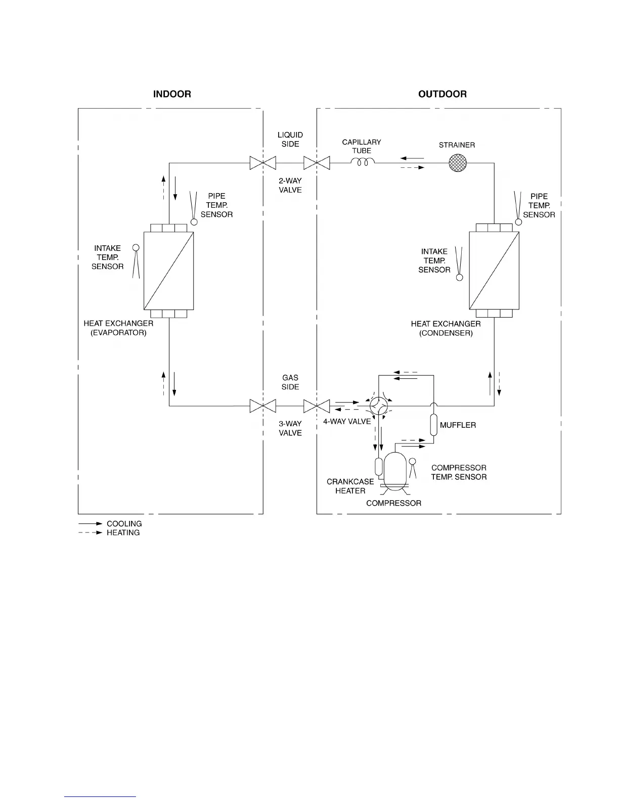
6. Refrigeration Cycle Diagram
6.1 CU-E7PKR

Table of Contents

Other manuals for Panasonic CS-E15PKR

Related product manuals