EasyManua.ls Logo

Panasonic CS-E18NKEW - Cu-E21 Nke

Panasonic CS-E18NKEW
189 pages
Print Icon
To Next Page IconTo Next Page
To Next Page IconTo Next Page
To Previous Page IconTo Previous Page
To Previous Page IconTo Previous Page
Loading...
36
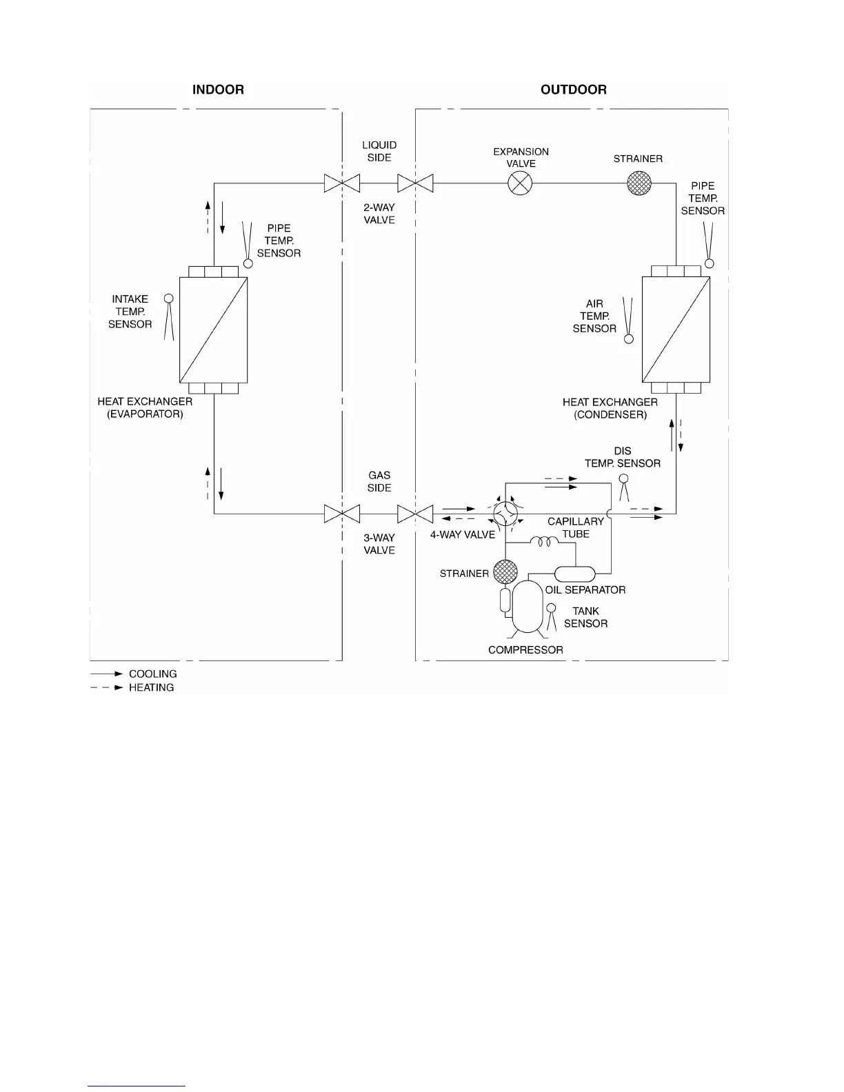
6.4 CU-E21NKE

Table of Contents