EasyManua.ls Logo

Panasonic CS-E18PKR - Cu-E15 Pkr Cu-E18 Pkr

Panasonic CS-E18PKR
205 pages
Print Icon
To Next Page IconTo Next Page
To Next Page IconTo Next Page
To Previous Page IconTo Previous Page
To Previous Page IconTo Previous Page
Loading...
37
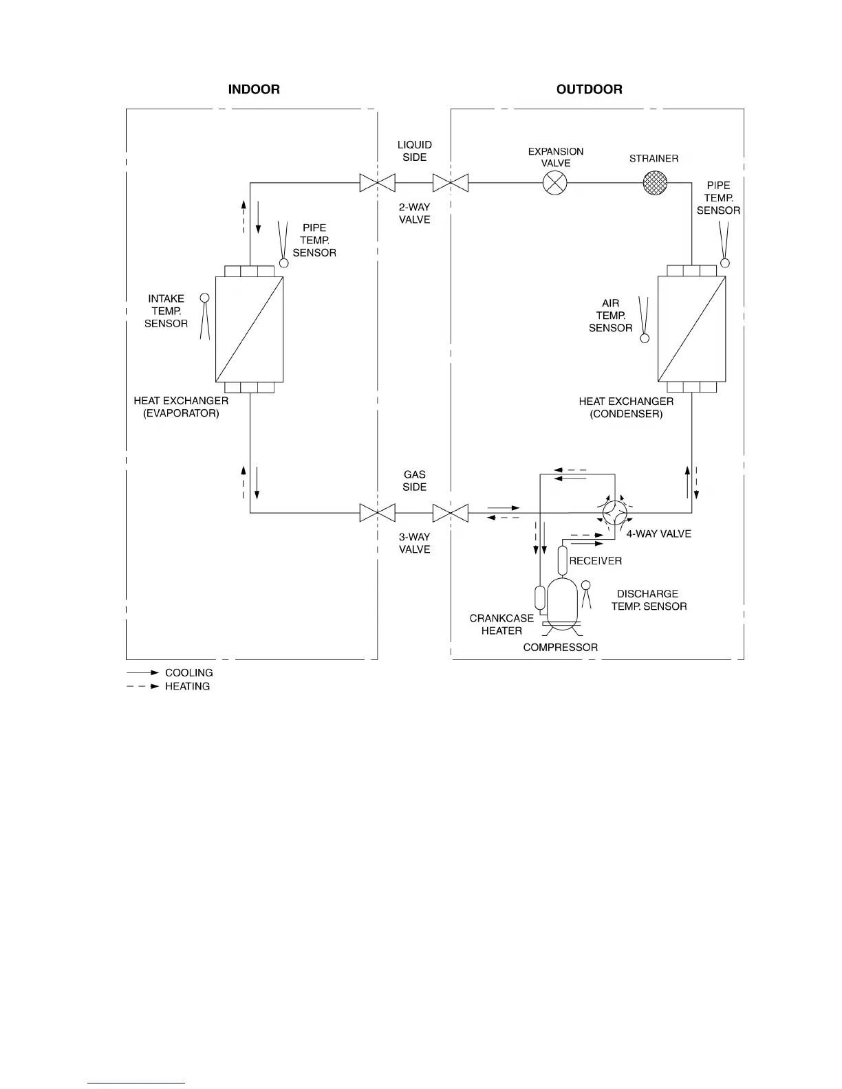
6.3 CU-E15PKR CU-E18PKR

Table of Contents

Other manuals for Panasonic CS-E18PKR

Related product manuals