EasyManua.ls Logo

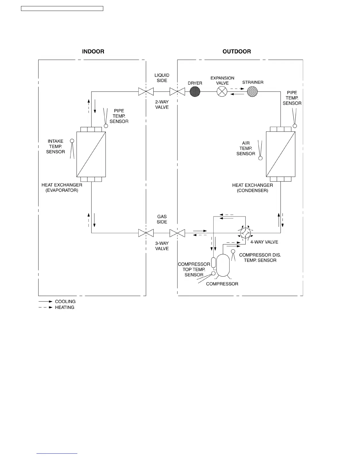
Panasonic CS-E21EKU - Refrigeration Cycle Diagram

Panasonic CS-E21EKU
33 pages
Print Icon
To Next Page IconTo Next Page
To Next Page IconTo Next Page
To Previous Page IconTo Previous Page
To Previous Page IconTo Previous Page
Loading...
5 Refrigeration Cycle Diagram
12
CS-E18EKU CU-E18EKU / CS-E21EKU CU-E21EKU

Related product manuals