EasyManua.ls Logo

Panasonic CS-E24PKR - Cu-E21 Pkr Cu-E24 Pkr

Panasonic CS-E24PKR
205 pages
Print Icon
To Next Page IconTo Next Page
To Next Page IconTo Next Page
To Previous Page IconTo Previous Page
To Previous Page IconTo Previous Page
Loading...
38
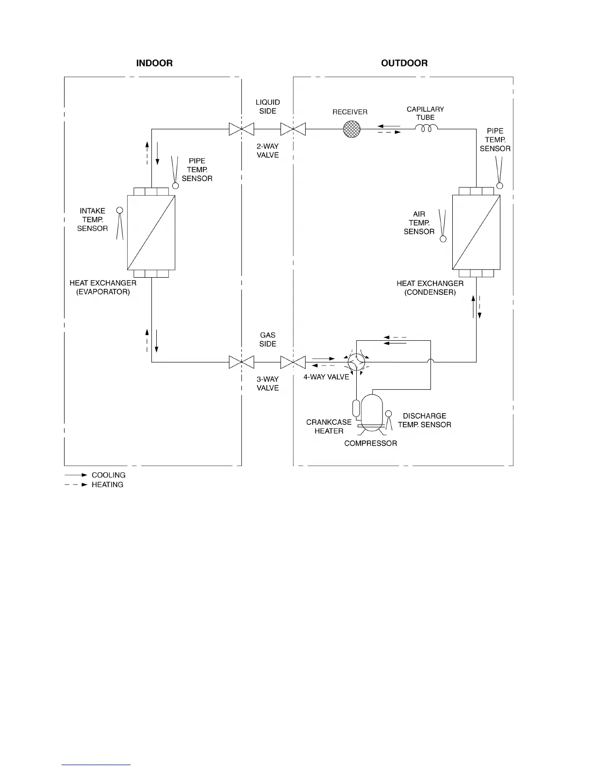
6.4 CU-E21PKR CU-E24PKR

Table of Contents

Other manuals for Panasonic CS-E24PKR

Related product manuals