EasyManua.ls Logo

Panasonic CS-F28DTE5 - 3 Refrigeration Cycle

Panasonic CS-F28DTE5
33 pages
To Next Page IconTo Next Page
To Next Page IconTo Next Page
To Previous Page IconTo Previous Page
To Previous Page IconTo Previous Page
Loading...
5
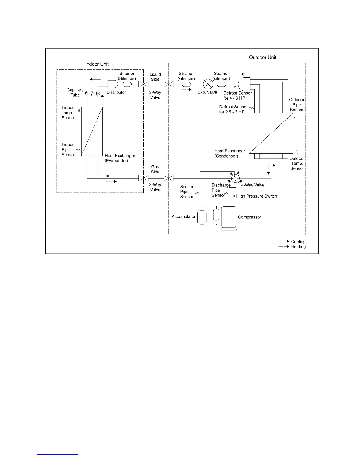
3 Refrigeration Cycle

Other manuals for Panasonic CS-F28DTE5

Related product manuals