EasyManua.ls Logo

Panasonic CS-MC90KE - Dimensions

Panasonic CS-MC90KE
56 pages
Print Icon
To Next Page IconTo Next Page
To Next Page IconTo Next Page
To Previous Page IconTo Previous Page
To Previous Page IconTo Previous Page
Loading...
– 11 –
MAC9702008C2
CS-MC90KE
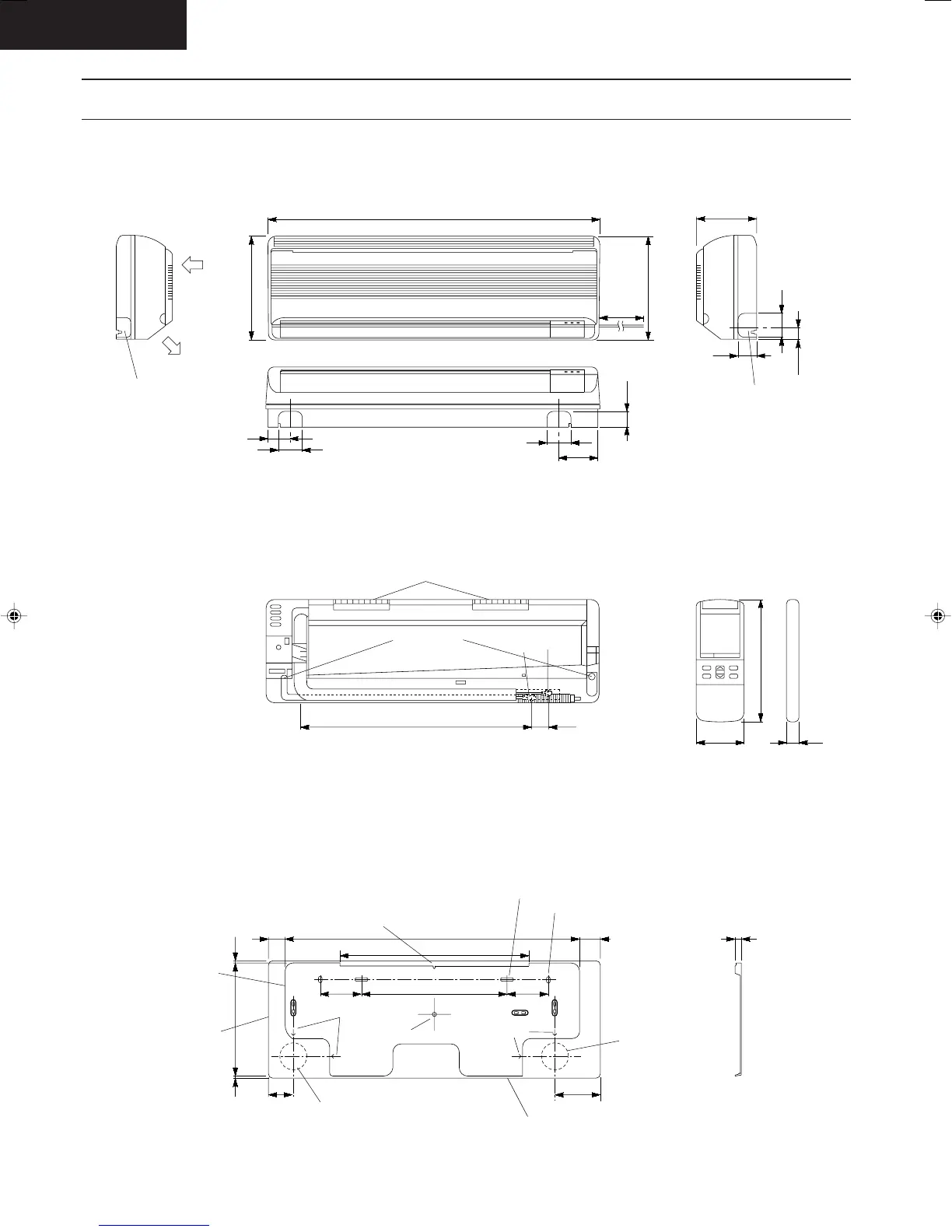
Dimensions
CS-MC90KE
Relative position between the indoor unit and the installation plate <Front View>
(45)(410)
<Back View>
Installation plate hooks
Drain ports
Gas
side
Liquid
side
Remote control transmitter
57
142
16
790
48.5
60
290
<Front View>
175
61
34.5
52
direction
Air intake
Air outlet
direction
Left piping hole
Right piping hole
290
115
55
60
2100
Below
(44)
710
(45)
276
7
(64)
(115)
100 100
Slot (2 places)
Slot (2 places)
Centre notch
Indoor unit external
dimensions line
Installation plate
Left piping hole
Arrow
Arrow
Centre
Right piping hole
Installation plate positioning gauge
350
7
457
13.5
Untitled-24 6/25/00, 5:31 PM11

Related product manuals