EasyManua.ls Logo

Panasonic CS-MC90KE - Block Diagram

Panasonic CS-MC90KE
56 pages
Print Icon
To Next Page IconTo Next Page
To Next Page IconTo Next Page
To Previous Page IconTo Previous Page
To Previous Page IconTo Previous Page
Loading...
– 14 –
MAC9702008C2
CS-MC90KE
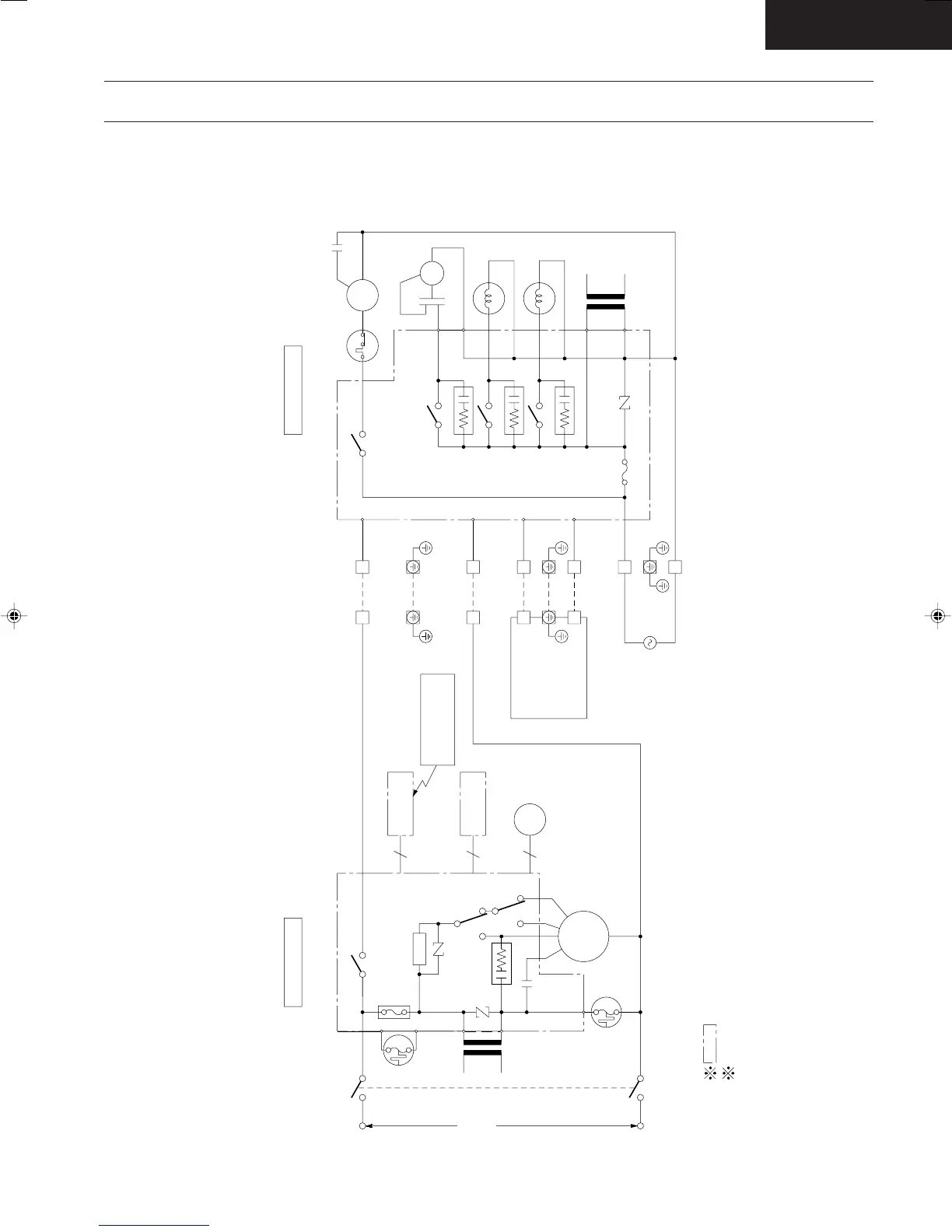
Block Diagram
CS-MC90KE / CU-MC140KE
22
11
3C
"C"
FUSE
3.15A
RY-C
RECEIVER
P.C.B.
SINGLE PHASE
220-240V ~
50Hz
RY-H
TRANS-
FORMER
THERMAL
FUSE
(99°C)
(102°C)
FUSE
THERMAL
ZNR1
FAN
MOTOR
POWER SWITCH
ELECTRONIC CONTROLLER
Indicates the electronic control unit.
Indicates the number of core wires. (Example:6C=6 core wires).
9740312
RY-M
P.C.B.
INDICATOR
4C
5C
STEPPING
MOTOR
INDOOR UNIT OUTDOOR UNIT
WIRELESS
REMOTE CONTROL
TRANSMITTER
ZNR2
SSR
MAIN
CS-MC90KE/CU-MC140KE
A-006C.DWG
CR1
INDOOR UNIT A
COMP
22
11
OLP
INDOOR UNIT B
SAME AS
UNIT A
C-COMP
RY-C
FUSE
3.15A
RY-FM
FAN
MOTOR
RY-VA2
VA2
CR1
VA1
RY-VA1
CR3
CR2
TRANS-
FORMER
ZNR1
L
N
POWER SUPPLY
OUTDOOR
220-240V ~
50Hz
C-FM
Untitled-24 6/25/00, 5:31 PM14

Related product manuals