EasyManua.ls Logo

Panasonic CS-PC12DKD - Block Diagram

Panasonic CS-PC12DKD
63 pages
Print Icon
To Next Page IconTo Next Page
To Next Page IconTo Next Page
To Previous Page IconTo Previous Page
To Previous Page IconTo Previous Page
Loading...
CS-PA12DKD/CU-PA12DKD
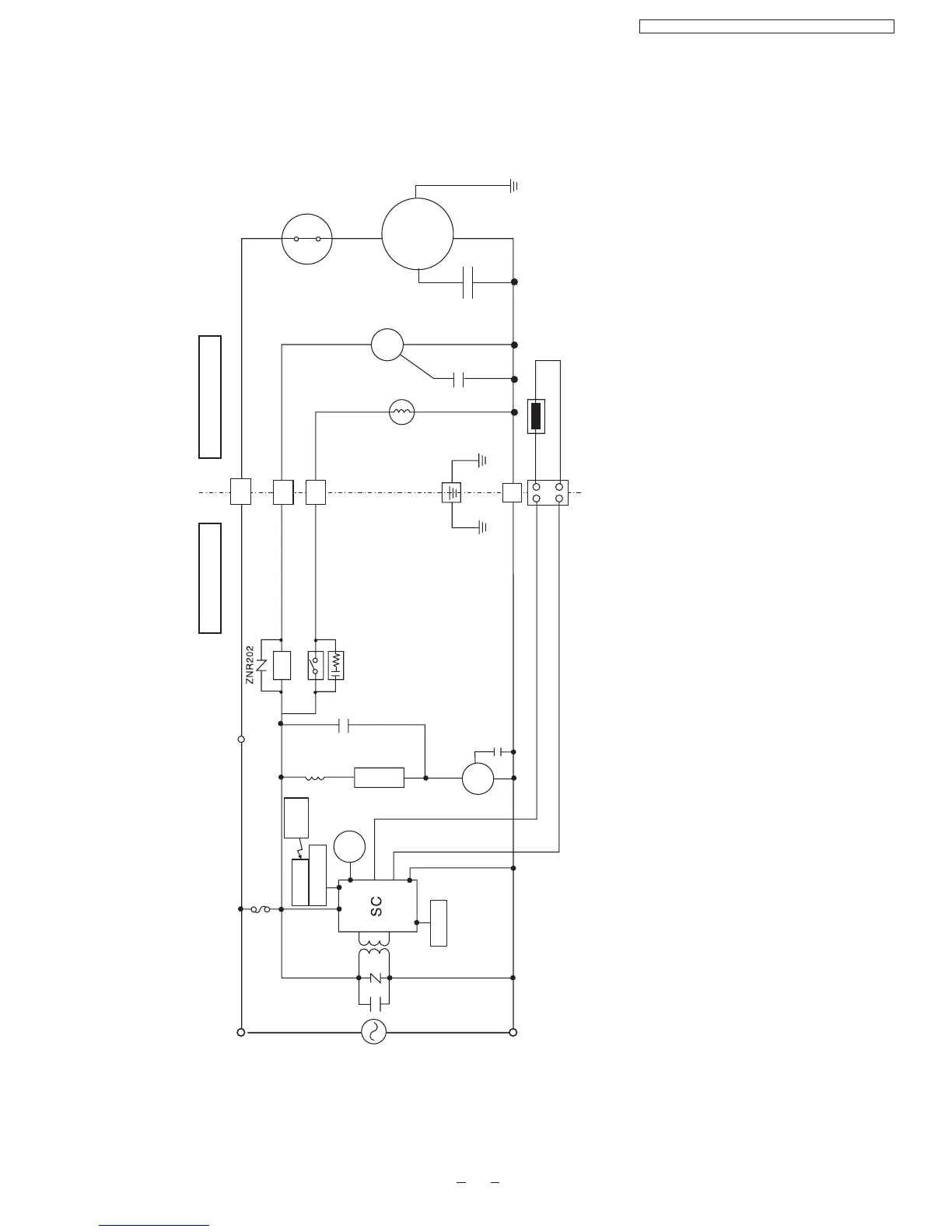
6 Block Diagram
FM
FM
2
CR201
3
4
1
RY-HOT
SSR202
SSR201
FUSE
RY-PWR
OUTDOOR UNIT
Receiver
Remote
Control
FM
4-Valve
Compressor
Sensor
Indicator
Piping Sensor
O.L.P.
INDOOR UNIT
13
POWER SUPPLY
AC220V-230V 50Hz
CS-PC12DKD / CU-PC12DKD / CS-PA12DKD / CU-PA12DKD

Related product manuals