EasyManua.ls Logo

Panasonic CS-PS9NKV - Outdoor Unit Circuit Diagrams

Panasonic CS-PS9NKV
108 pages
Print Icon
To Next Page IconTo Next Page
To Next Page IconTo Next Page
To Previous Page IconTo Previous Page
To Previous Page IconTo Previous Page
Loading...
28
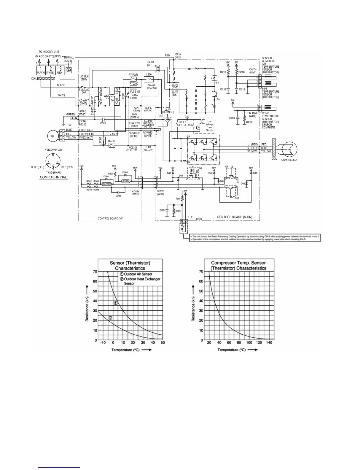
8.2 Outdoor Unit
8.2.1 CU-PS9NKV

Table of Contents