EasyManua.ls Logo

Panasonic CS-XE7LKEW - Page 45

Panasonic CS-XE7LKEW
185 pages
To Next Page IconTo Next Page
To Next Page IconTo Next Page
To Previous Page IconTo Previous Page
To Previous Page IconTo Previous Page
Loading...
45
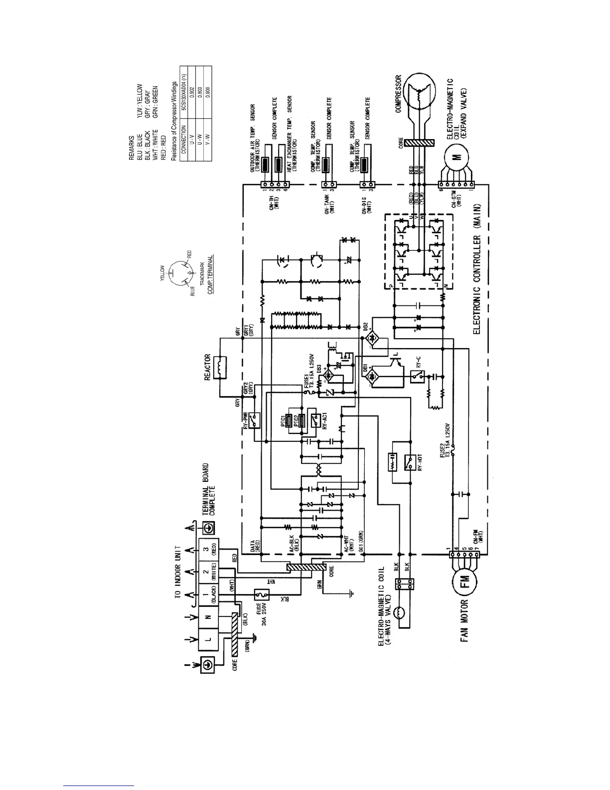
8.2.4. CU-E18LKE CU-E21LKE

Table of Contents

Other manuals for Panasonic CS-XE7LKEW

Related product manuals