EasyManua.ls Logo

Panasonic CU-2C18EKH - Wiring Connection Diagram; Cs-C9 Ekzw Cu-2 C18 Ekh

Panasonic CU-2C18EKH
57 pages
Print Icon
To Next Page IconTo Next Page
To Next Page IconTo Next Page
To Previous Page IconTo Previous Page
To Previous Page IconTo Previous Page
Loading...
16
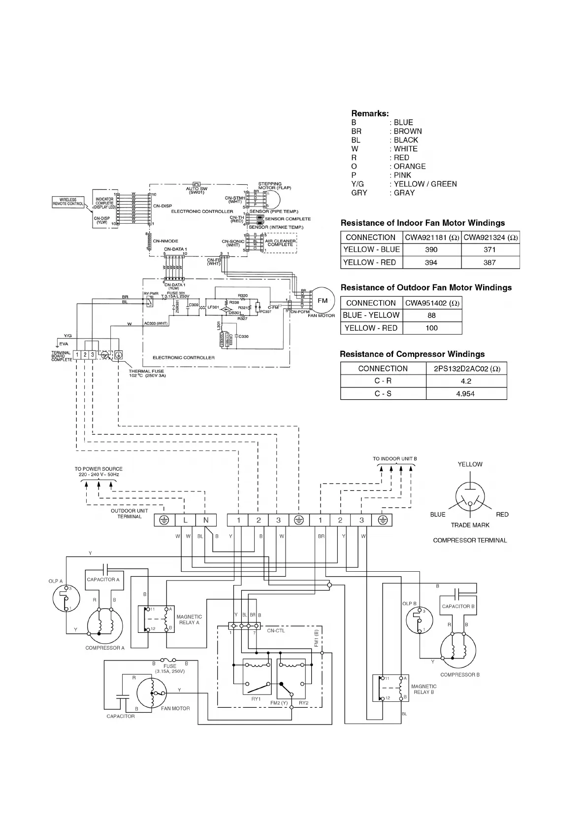
8 Wiring Connection Diagram
8.1. CS-C9EKZW CU-2C18EKH

Related product manuals