EasyManua.ls Logo

Panasonic CU-E12LKE - Cu-E18 Lke Cu-E21 Lke

Panasonic CU-E12LKE
185 pages
Print Icon
To Next Page IconTo Next Page
To Next Page IconTo Next Page
To Previous Page IconTo Previous Page
To Previous Page IconTo Previous Page
Loading...
35
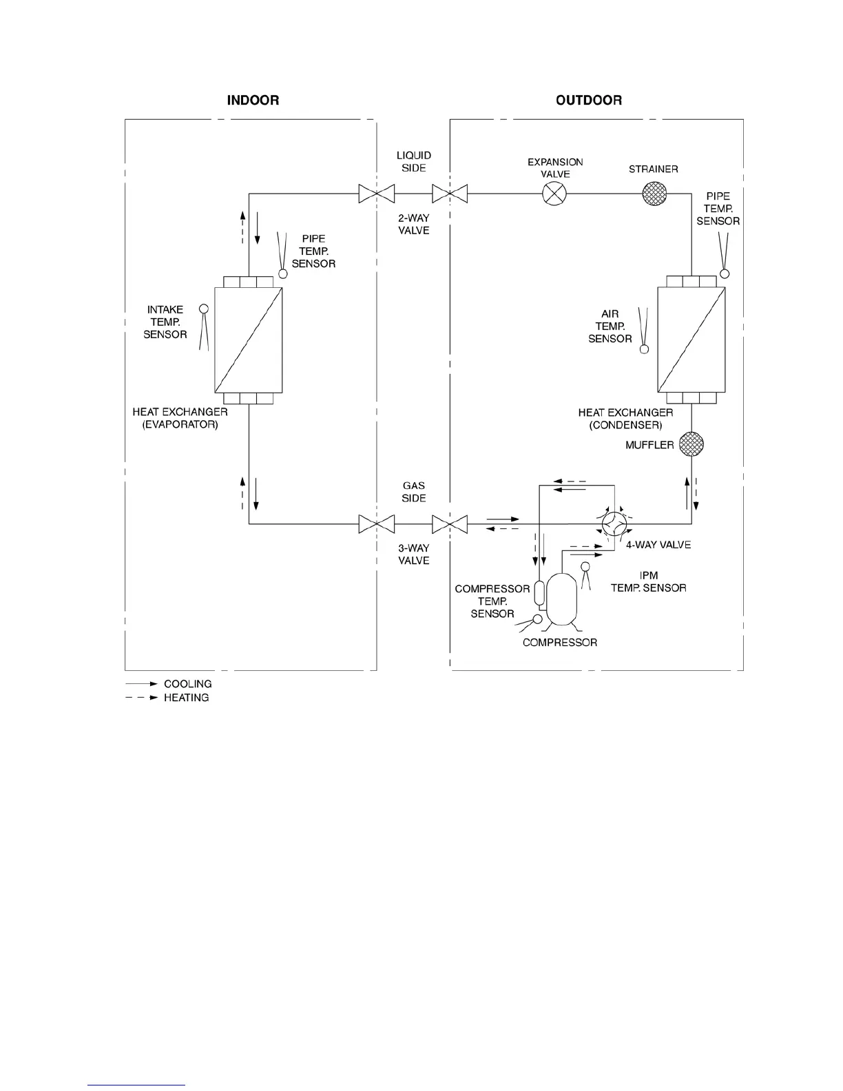
6.3. CU-E18LKE CU-E21LKE

Table of Contents

Other manuals for Panasonic CU-E12LKE

Related product manuals