EasyManua.ls Logo

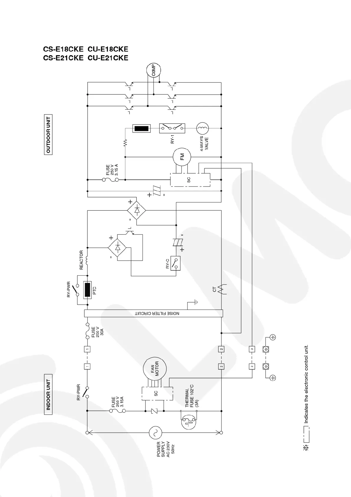
Panasonic CU-E21CKE - 6 Block Diagram; Electrical System Architecture

Panasonic CU-E21CKE
100 pages
Print Icon
To Next Page IconTo Next Page
To Next Page IconTo Next Page
To Previous Page IconTo Previous Page
To Previous Page IconTo Previous Page
Loading...
6 Block Diagram
13

Table of Contents

Related product manuals