EasyManua.ls Logo

Panasonic CU-E28PKR - Cu-E28 Pkr

Panasonic CU-E28PKR
205 pages
Print Icon
To Next Page IconTo Next Page
To Next Page IconTo Next Page
To Previous Page IconTo Previous Page
To Previous Page IconTo Previous Page
Loading...
39
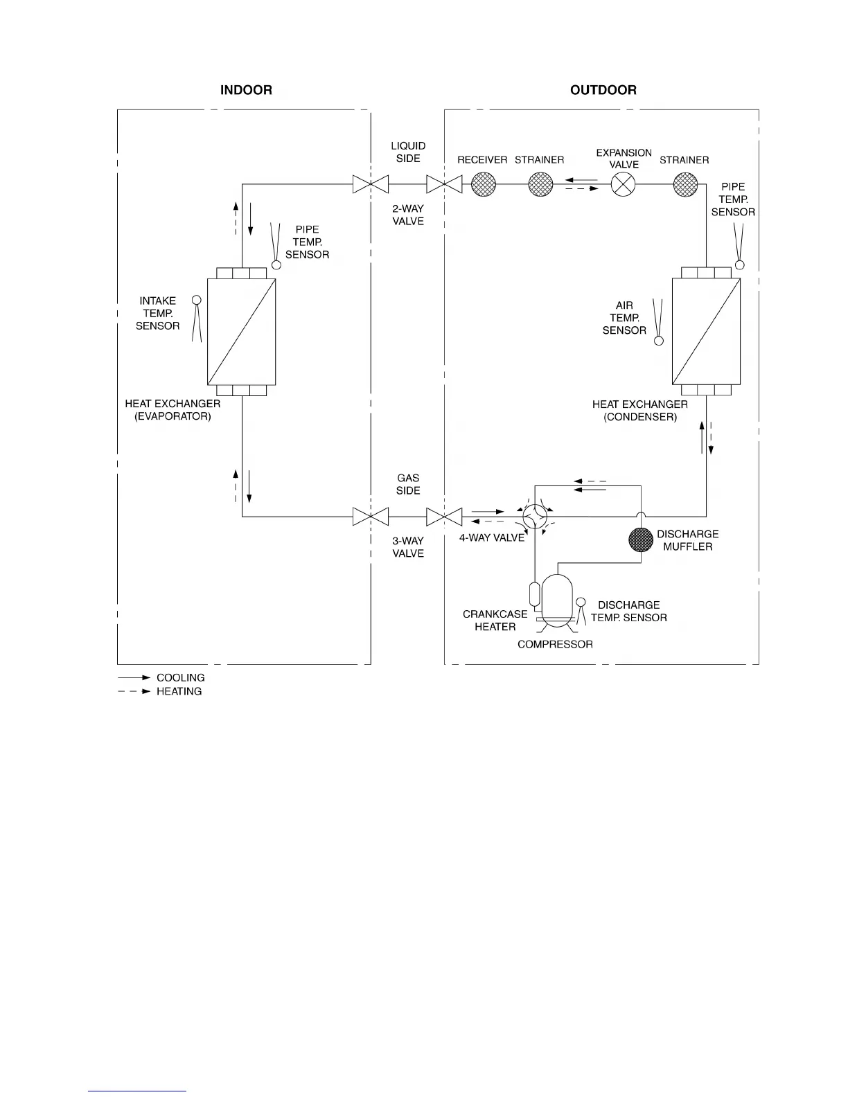
6.5 CU-E28PKR

Table of Contents

Other manuals for Panasonic CU-E28PKR

Related product manuals