EasyManua.ls Logo

Panasonic PAW-FC2A-K018IR

Panasonic PAW-FC2A-K018IR
32 pages
To Next Page IconTo Next Page
To Next Page IconTo Next Page
To Previous Page IconTo Previous Page
To Previous Page IconTo Previous Page
Loading...
19
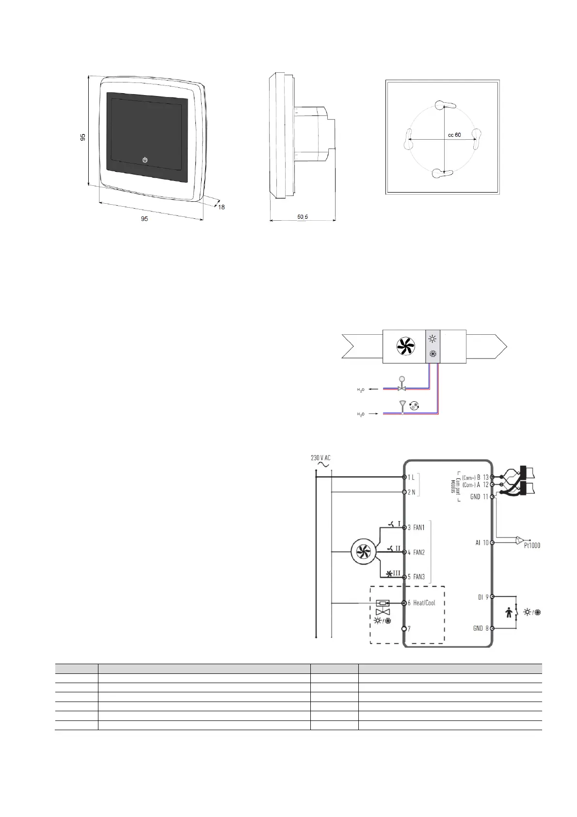
9.2 Dimensions
9.3 Functions
The room thermostat regulates heating and/or cooling in a room via digital outputs on/off for valves and for 3-speed fan control. The
touch screen shows the actual operating state and is also used to access all parameters, such as setpoint, hysteresis, fan speed etc.
The unit has a built-in room temperature sensor. The change-over (between heating and cooling at 2 pipe installation) can be
controlled by selecting the mode on the display or via a digital input connected to any potential free contact (e.g. heat pump in COOL
mode). Functions such as mould protection and automatic valve exercise ensures a proper functionality and a problem free work
over the time.
Two pipe system
This control mode is suitable for room HVAC systems that use
a 2-pipe fan coil as heating and cooling device (see figure).
A change-over function makes it possible to use the
thermostat in a 2-pipe changeover system, where warm or
cold media flow in the same pipes and one valve is used to
regulate both heating and cooling distribution. The thermostat
is either in heating or cooling mode and switches between the
modes according to the change-over function settings.
9.4 Installation
1. Install the attached clamp-on temperature sensor at
the supply pipeline from the heat pump.
Extend the cable if necessary up to 50m with J-
Y(St)Y 2x2x0,8.
2. Separate the back plate from the display part with a
small screwdriver. Insert him in the grooves at the
bottom of the display part and turn it slightly.
3. Connect the wires to the terminals.
4. Place the back plate over the electrical wall box and
fasten it on the wall using the mounting holes.
5. Clip the display back on to the back plate. Switch on
the power supply. Controller starts in Off state.
Press On/Off button to switch to On state
Terminal
Description
Terminal
Description
L
Supply voltage 230V AC Phase
FAN 1
Fan speed 1, digital output
N
Supply voltage 230V AC Neutral
FAN 2
Fan speed 2, digital output
GND
Ground /reference potential for AI, DI and Modbus Com N
FAN 3
Fan speed 3, digital output
Heat
Heating and Cooling valve actuator
DI
External potential-free contact, digital input
Cool
Cooling valve actuator at 4-pipe installation, digital output
A
Serial communication port Com A, Modbus RTU
AI
External temperature sensor, analog input
B
Serial communication port Com B, Modbus RTU

Related product manuals