EasyManua.ls Logo

Panasonic PV-D4735 - Other Connections; Cable Box Connection Diagrams; DVD High Picture Quality Connections

Panasonic PV-D4735
72 pages
Print Icon
To Next Page IconTo Next Page
To Next Page IconTo Next Page
To Previous Page IconTo Previous Page
To Previous Page IconTo Previous Page
Loading...
13
You CannotYou Can
record and view
both scrambled
and unscrambled
channels if
additional
equipment is
added.
This connection
requires: two
converter boxes,
an A/B switch,
and a 2-way
splitter.
view a channel
other than the
one selected
for any type of
recording.
set a Timer
recording of a
channel unless
you select it on
the Cable Box.
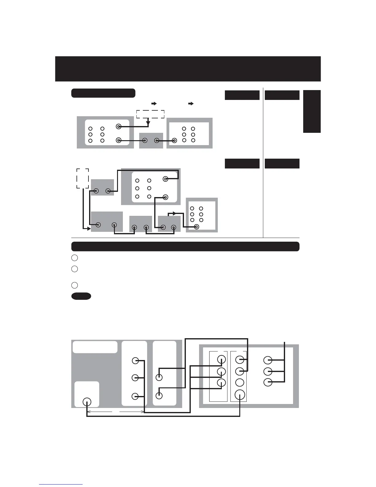
IN FROM ANT.
OUT TOTV
IN 1
VHF/UHF
OUT
IN 2IN 1
Cable Box
OUTIN
OUT 2
OUT 1
2-Way Splitter
OUT
A/B Switch
IN
Connect With Two Cable Boxes
IN FROM ANT.
OUTTO TV
IN 1
VHF/UHF
OUT
Cable Box
OUTIN
IN
R
L
OUT
TV
VIDEO
AUDIO
ANT or CATV
You CannotYou Can
record
scrambled
channels.
view any
(including
scrambled)
channel.
use Remote
Control to select
channels without
using Multi-brand
control feature.
ANT
or
CATV
IN
VIDEO
AUDIO
R
L
OUT
TV
Connect AUDIO OUT2 (L, R) to the AUDIO IN (L, R) of the TV. (audio input for COMPONENT or
S-VIDEO mode).
If your TV has COMPONENT VIDEO INPUT, connect to COMPONENT VIDEO OUT.
If your TV does not have COMPONENT VIDEO INPUT but has S-VIDEO INPUT, connect to
S-VIDEO OUT.
When in DVD mode, set your TV to either COMPONENT VIDEO IN or S-VIDEO IN.
Connections For DVD Only (enjoying higher picture quality)
Other Connections
Notes
DVD/VCR DECK
DVD/VCR DECK
VHF/
UHF
Cable Box
VHF/
UHF
With a Cable Box (DECK
Cable Box TV)
2
1
3
Initial Setup
You can watch DVDs through the S-VIDEO or COMPONENT VIDEO, VHF/UHF OUT TO TV,
and VIDEO OUT connections to your TV. The VCR and TUNER pictures are available only
from the VIDEO OUT and VHF/UHF OUT TO TV connections to your TV.
PROG functions on the remote are not available when using S-VIDEO OUT and COMPONENT
Video Output. Please set TV to either RF INPUT or VIDEO INPUT, and then press PROG.
TV must have capability to accept and display a progressive scan signal to use
PROGRESSIVE mode. Consult your TV operating instructions.
VIDEO
AUDIO
R
L
TV
COMPONENT
VIDEO OUT
AUDIO OUT2
S-VIDEO OUT
DVD OUTPUT
Y
P
B
P R
R
L
IN
Y
PB
PR
S-VIDEO
IN
R
L
IN
From DECK’s
A/V OUTPUT
DVD/VCR DECK
or
IN

Related product manuals