EasyManua.ls Logo

Panasonic S-140MF2E5A - Page 60

Panasonic S-140MF2E5A
360 pages
Print Icon
To Next Page IconTo Next Page
To Next Page IconTo Next Page
To Previous Page IconTo Previous Page
To Previous Page IconTo Previous Page
Loading...
2-52
Design of VRF SYSTEM
1
2
3
4
5
6
7
8
9
4. Optional Parts
CZ-P1350BK2 (for R410A)
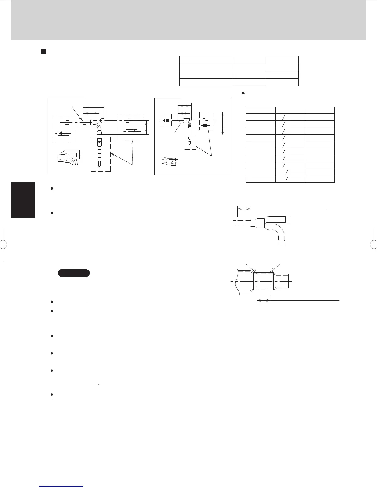
How to Attach Distribution Joint
1. Accompanying Parts
2. Distribution Joint Kits (with insulation)
3. Making Branch Connections
NOTE
Check the contents of your distribution joint kit.
Size mm Inch
Size of connection point on each part
(Shown are inside diameters of tubing)
Part A
1-1/8o28.58
Part B
1
o25.4
Part C
7/8
o22.22
Part D
3/4
o19.05
Part E
5/8
o15.88
For branching tubes, install 150mm or larger (including reducer)
straight tubing up to the point where the tube branches
(or after the point where the tubes join together). (Fig. 2-148)
Using a tube cutter, cut the joints at the diameter required to match
the outside diameter of the tubing you are connecting.
(This is usually done at the installation site.)
The tube diameter depends on the total capacity of the indoor unit.
Note that you do not have to cut the joints if it already matches the
tubing end size. For size selection of the tube diameter, refer to the
Installation Instructions provided with the outdoor unit.
Straight tubing 150mm or larger
Avoid forceful cutting that may harm the shape of the joints or tubing.
(Inserting the tubing will not be possible if the tube shape is not proper.)
Cut off as far away from stopper as possible. (Fig. 2-149)
After cutting the joints, be sure to remove burrs on the inside of the joints.
(If the joints have been squashed or dented badly, reshaped them using
a tube spreader.)
Make sure there is no dirt or other foreign substances inside the distribution
joint.
1-1/2o38.1
o31.75
1-1/4
Part F
1/2
o12.7
Part G
3/8
o9.52
Part H
1/4
o6.35
Part I
Part J
Stopper(boss)
Cutting point
Insertion length of the
connecting tube
Make space as long as possible.
When brazing, replace air inside the tube with nitrogen gas to prevent
copper oxide from forming.
To insulate the distribution joint, use the supplied tubing insulation.
(If using insulation other than that supplied, make sure that its heat
resistance is 120 C or higher.)
For additional details, refer to the Installation Instructions provided with
the outdoor unit.
Fig. 2-149
Fig. 2-148
1
1
7
Parts Kit 1
1
1
4
Parts Kit 2
Distribution Joints
Insulations
Reducing Joints
Part Name
Parts Kit 2
Parts Kit 1
Reducing
Joints
Reducing
unit : mmunit : mm
Joints
Distribution
Joint
Distribution
Joint
Insulation
Insulation
A
C
G
G
H
A
C
D
F
F
J
F
E
D
C
I
H
G
H
G
B
B
B
D
135
175
114
110
97
72
TDxxxxxx-002WAYVRF.indb52TDxxxxxx-002WAYVRF.indb52 2014/01/3017:52:322014/01/3017:52:32

Table of Contents

Other manuals for Panasonic S-140MF2E5A

Related product manuals