EasyManua.ls Logo

Panasonic S-28MD1E5 - Page 38

Panasonic S-28MD1E5
177 pages
To Next Page IconTo Next Page
To Next Page IconTo Next Page
To Previous Page IconTo Previous Page
To Previous Page IconTo Previous Page
Loading...
2WAY SYSTEM
Control Functions
-
Outdoor Unit
1 - 30
1
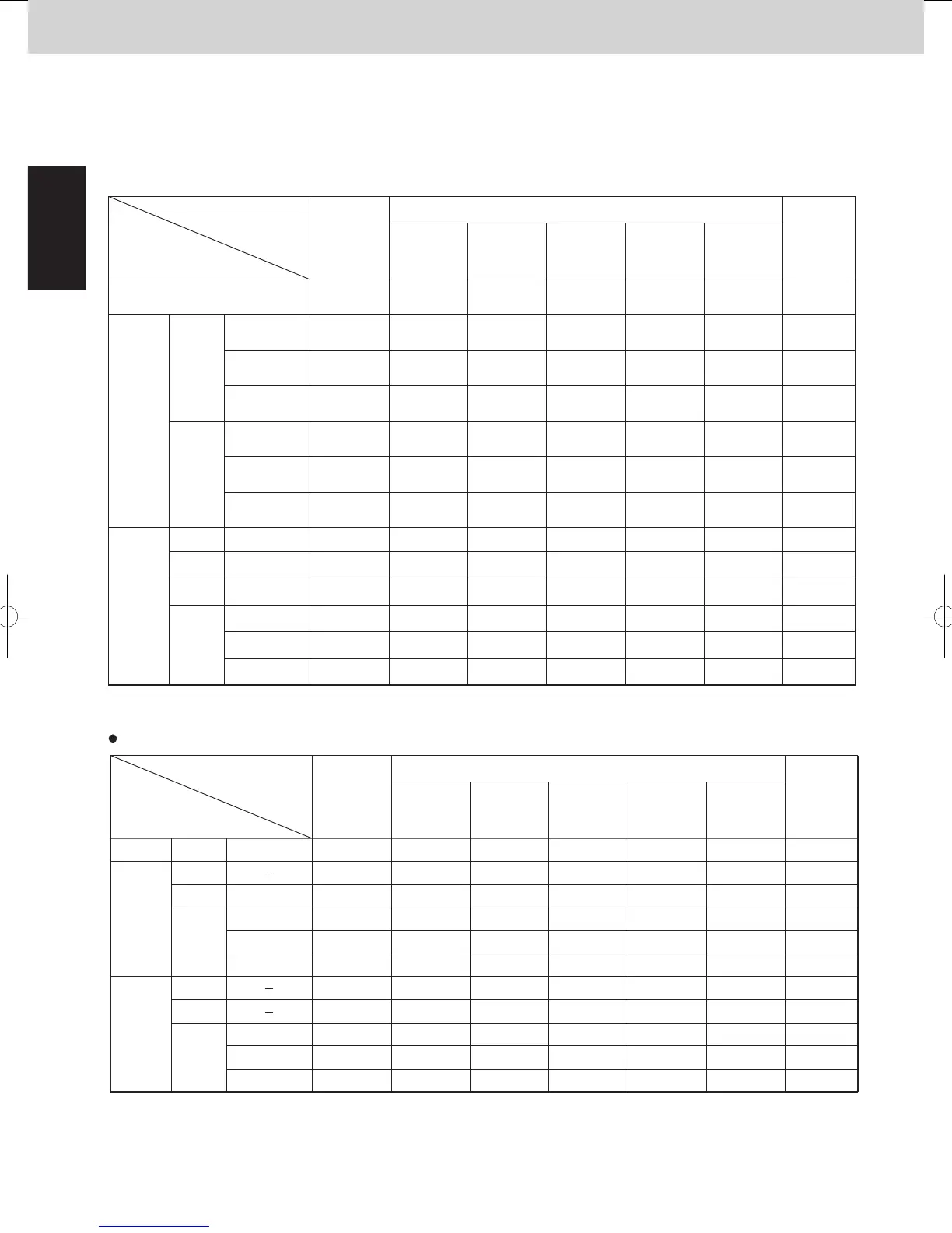
9. Defrost Control
9. Defrost Control
2WAY SYSTEM
Control Functions-Outdoor Unit
E
C→E
E→C
S
C
: Evaporator operation
*3 Only for High Static Pressure Ducted Type Indoor Unit (Type E1)
: Switching from condenser operation to evaporator operation
: Switching from evaporator operation to condenser operation
: Stop or shut off the refrigerant
: Condenser operation
Normal
operation
Normal
operation
Outdoor unit cycle defrost processing
E E→C C C→E EEE
1st
Defrost
group
2nd
Defrost
group
Indoor unit
delay-start
control
1st
Defrost
group
2nd
Defrost
group
Switch Switch
Control time - 1 min Max 7.5 min 1 min Max 7.5 min 1 min -
Defrost
occurs
Outdoor
unit(s)
Indoor
units
Defrost
occurs
first
second
Mode
Stop
Heat
exchanger
Compressor
Fan
Heat
exchanger
Compressor
Fan
Heating
E or S EEE→C CC→E E or S
ON ON ON OFF OFF OFFON
ON OFF OFF OFF ON OFF ON
ON or S OFF OFF OFFONOFF ON or S
ON or S ON ON OFF OFF OFFON or S
Fan
S
S
C
C
S
S
S
C
C
S
S
S
C
C
S
S
S
C
C
S
S
S
C
C
S
S
S
C
C
S
S
S
C
C
S
Thermostat
ON
OFF
*3 OFF
Indoor unit (expansion valve, fan)
*3 Only for High Static Pressure Ducted Type Indoor Unit (Type E1)
*4 Fan operates at the set fan speed depending on the indoor unit operation mode.
Normal
operation
Normal
operation
Outdoor unit cycle defrost processing
Indoor unit
delay-start
control
Switch
Switch
Expansion
valve
Unit :
pulse
Stop
Mode
Heating
Fan
Heating
Fan
Stop
65
65
SC control
65
20
*4
*4
*4
*4
*4
60
60
SC control
60
20
*4
*4
*4
*4
*4
20
20
60
60
20
LL
*4
*4
Stop
*4
20
20
60
60
20
LL
*4
*4
Stop
*4
20
20
60
60
20
LL
*4
*4
Stop
*4
20
20
60
60
20
LL
*4
*4
Stop
*4
20
20
SC control
65
20
*4
*4
*4
*4
*4
Thermostat
ON
OFF
*3 OFF
*3 OFF
ON
OFF
Fan
2WAY SYSTEM
Control Functions-Outdoor Unit
10. Upper Current Limitation Mode
EEPROM setting in main outdoor unit
EEPROM setting in main outdoor unit
CODE: 1A
CODE: 1E
Setting No.
0 No display
1
2
Information is displayed when input of demand control is set (factory preset mode).
Information is displayed only when the capacity is restricted by demand control.
Control
Contact 1
Upper current limitation setting
Contact 2
No control (Operates to maximum capacity)
Operates to XX% of the upper limit for the rated current.
Operates to YY% of the upper limit for the rated current.
Forced thermostat OFF setting
There are 2 types of control; demand control and infinity limit in the upper current limitation mode.
Serial-parallel I/O must be connected in order to perform demand control.
The below input is received by serial-parallel I/O, and demand control is performed.
The demand values can be set as needed with serial-parallel I/O.
It is able to display the present condition on the remote controller.
* The rated current indicates the current value that is listed in the catalog or similar material.
* XX and YY are able to set in EEPROM of main outdoor unit.
: Input present : Input not present
10-1. Demand Control
CODE: 1B
Setting No.
0
40
45
-1
130
YY
0
40
45
No control
130
Setting No.
0
40
45
-1
130
100
XX
0
No control
130
Interval of “5”
40
45
100 (factory preset mode)
70
Interval of “5”
70 (factory preset mode)
8 hp 10 hp 12 hp 14 hp 16 hp 18 hp 20 hp
8.9 12.9 15.4 18.0 21.8 24.0 28.2
8.8 12.9 15.1 17.4 21.1 24.3 27.7
Cooling mode
Heating mode
The standard value of the limit current is listed in the table below. unit: Amp.
hp = horsepower
SM830204-05_2WAY SYS.indb 30 2015/01/21 17:00:04

Table of Contents

Other manuals for Panasonic S-28MD1E5

Related product manuals