EasyManua.ls Logo

Panasonic S-28MD1E5 - Page 84

Panasonic S-28MD1E5
177 pages
To Next Page IconTo Next Page
To Next Page IconTo Next Page
To Previous Page IconTo Previous Page
To Previous Page IconTo Previous Page
Loading...
3 - 18
2WAY SYSTEM
Outdoor Unit Repair Procedures
3
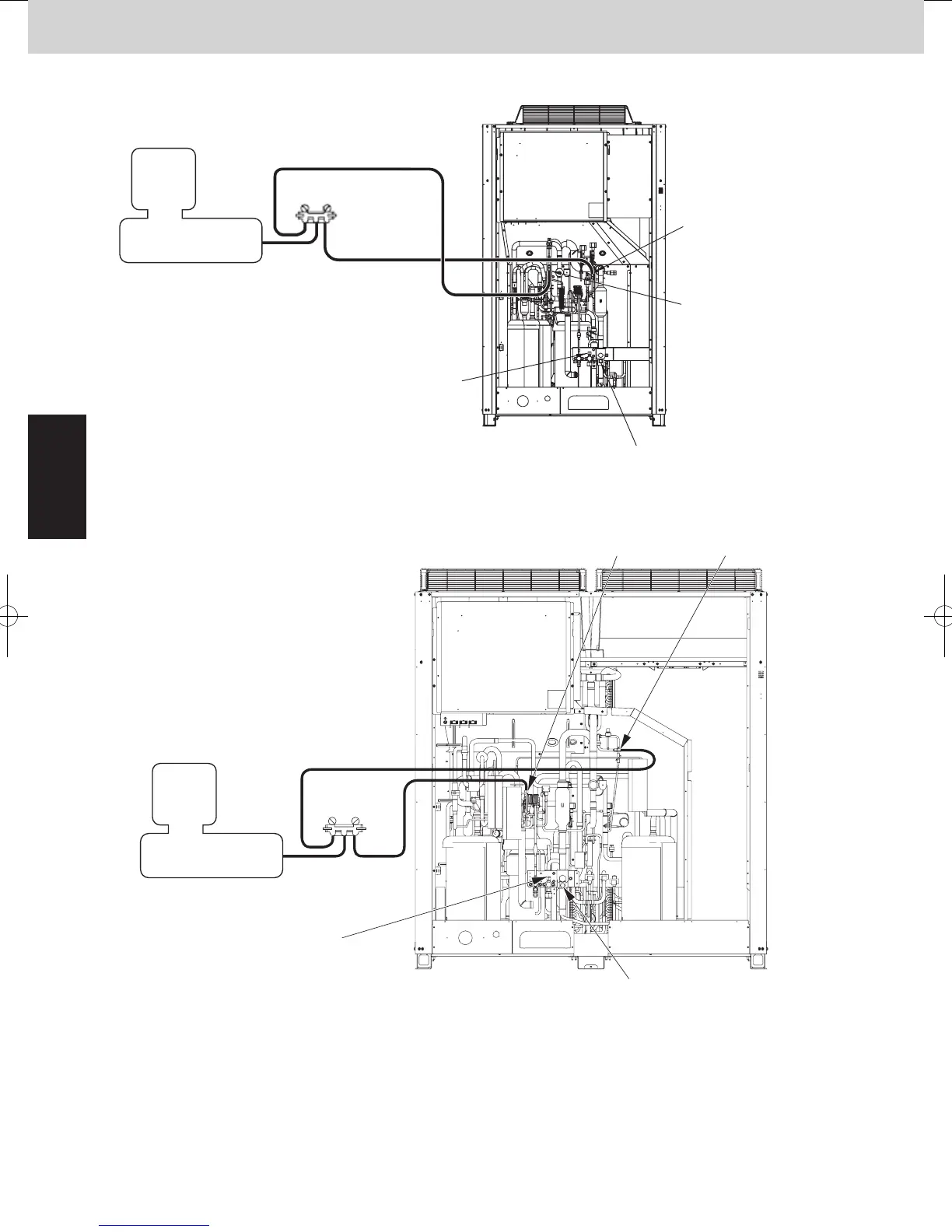
6. Evacuating System
6-2. Evacuating Refrigerant Tubing Between Indoor and Outdoor Units
Refer to the “Installation Instructions” that came with the outdoor unit.
Fig. 7-c
High-pressure outlet port
(for ø7.94mm-dia connector)
Low-pressure outlet port
(for ø7.94mm-dia connector)
Gas tube service port
(for ø7.94mm-dia connector)
Type 14HP / 16HP
Lo Hi
Manifold gauge
Liquid tube service port
(for ø7.94mm-dia connector)
Vacuum pump
Fig. 7-b
Vacuum pump
High-pressure outlet port
(for ø7.94mm-dia connector)
Low-pressure outlet port
(for ø7.94mm-dia connector)
Liquid tube service port
(for ø7.94mm-dia connector)
Gas tube service port
(for ø7.94mm-dia connector)
Type 18HP / 20HP
Manifold gauge
Lo Hi
SM830204-05_2WAY SYS_new.indb 18 15/01/05 15:31:35

Table of Contents

Other manuals for Panasonic S-28MD1E5

Related product manuals