EasyManua.ls Logo

Panasonic S-36PU1E5A - Page 207

Panasonic S-36PU1E5A
659 pages
To Next Page IconTo Next Page
To Next Page IconTo Next Page
To Previous Page IconTo Previous Page
To Previous Page IconTo Previous Page
Loading...
1-197
1
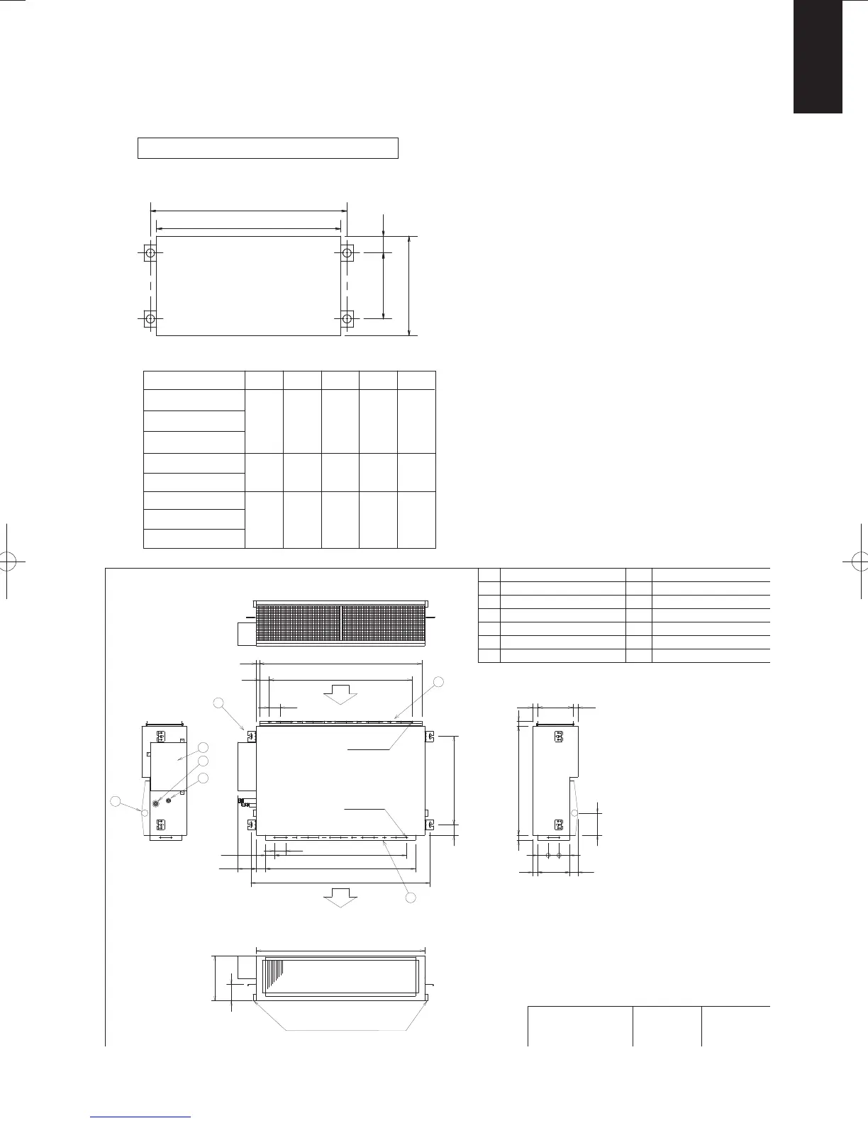
1-2. Dimensional Data
(A) Indoor Units: S-36PN1E5A, S-45PN1E5A, S-50PN1E5A
POSITION OF SUSPENSION BOLT
A
B
C
D
E
(unit:mm)
ATYPE B C D E
S-36PN1E5A
S-45PN1E5A
S-50PN1E5A
S-60PN1E5A
S-71PN1E5A
S-100PN1E5A
S-125PN1E5A
S-140PN1E5A
840 780 523 64 650
1060 1000 523 64 650
1260 1200 523 64 650
Air Flow
Drain pipe connection
Outside Dimensions MODEL NO.
UNIT:mm
No.
1
2
3
4
5
6
NAME Q'TY
NOTE
Air Flow
Pipe connection (liquid)
1
1
2
2
4
1
Pipe connection (gas)
Drain pipe connection
Hanger
Duct connection
Control box
O.D. Ø12.7 Flared
24-Ø4.5
22-Ø4.5
O.D. Ø6.35 Flared
Female screw PT1"
S-45PN1E5A
S-36PN1E5A
S-50PN1E5A
58
48
31
65
161
48
30 650 30
31 32187
55
55
100 670
585 (P65 x 9)
650 (P65 x 10)
65
64
250
80
65
740
780
523
134
45
20
840
3
2
1
6
5
4
4
SM830231-00Single欧州.indb197SM830231-00Single欧州.indb197 2014/06/0510:12:202014/06/0510:12:20

Table of Contents

Other manuals for Panasonic S-36PU1E5A

Related product manuals