EasyManua.ls Logo

Panasonic S-36PU1E5A - Page 208

Panasonic S-36PU1E5A
659 pages
To Next Page IconTo Next Page
To Next Page IconTo Next Page
To Previous Page IconTo Previous Page
To Previous Page IconTo Previous Page
Loading...
1-198
1
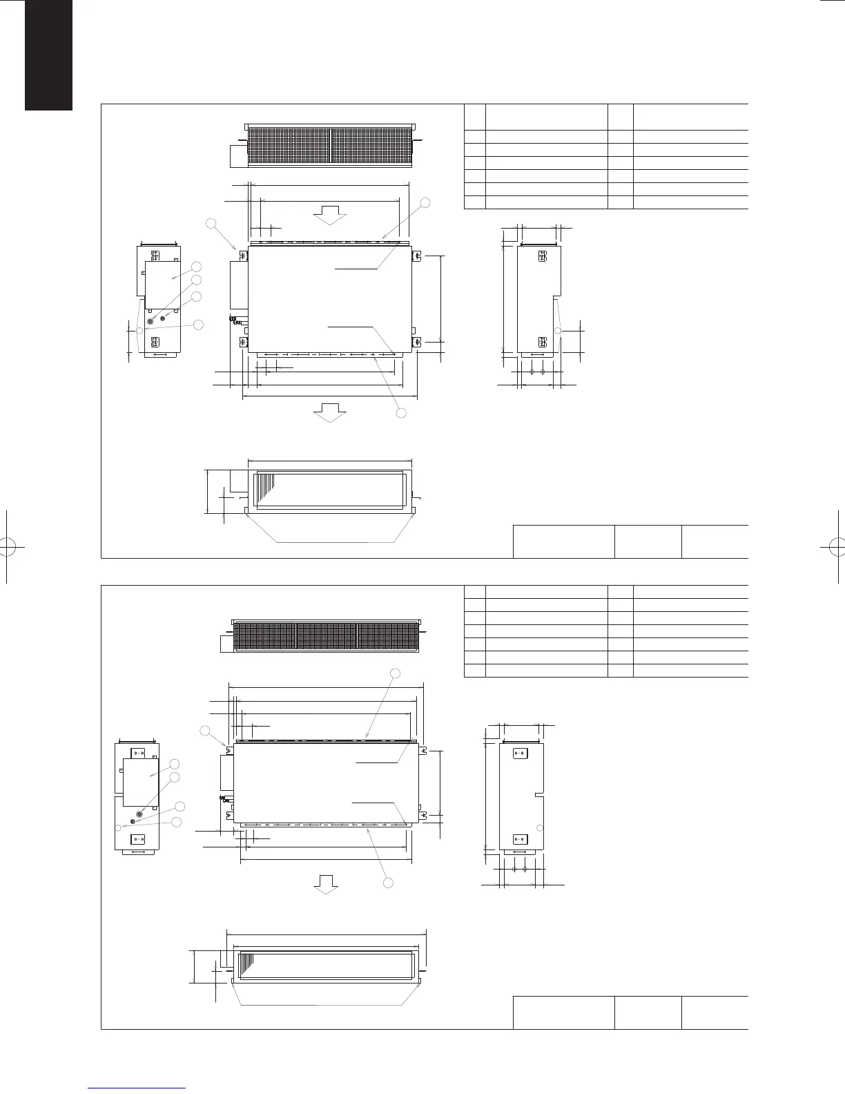
1-2. Dimensional Data
(A) Indoor Units: S-60PN1E5A, S-71PN1E5A
(A) Indoor Units: S-100PN1E5A, S-125PN1E5A, S-140PN1E5A
Drain pipe connection
30-Ø4.5
28-Ø4.5
780 (P65 x 12)
845 (P65 x 13)
Air Flow
Outside Dimensions
MODEL NO.
UNIT:mm
Air Flow
Hanger
Drain pipe connection
Pipe connection (liquid)
1
2
3
4
5
NO.
6
NOTE
NAME
Pipe connection (gas)
4
Q'TY
2
1
1
2
1
Duct connection
Control box
O.D. Ø15.88 Flared
O.D. Ø9.52 Flared
Female screw PT1"
S-71PN1E5A
S-60PN1E5A
55
55
100 890
65
64
250
80
65
960
1000
523
57.5
20
58
48
31
65
161
48
30 650 30
31 32187
134
134
1060
5
4
4
3
2
1
6
NO.
1
2
3
4
5
6
NAME
NOTE
Pipe connection (liquid)
Q'TY
1
1
2
2
4
1
Pipe connection (gas)
Drain pipe connection
Hanger
Duct connection
Control box
O.D. Ø15.88 Flared
O.D. Ø9.52 Flared
Female screw PT1"
Outside Dimensions
MODEL NO.
UNIT:mm
S-100PN1E5A
S-140PN1E5A
S-125PN1E5A
100
1260
1090
250
64
46-Ø4.5
44-Ø4.5
80
1160
20
1320
523
1200
65
57.5
60
1040(P65x16)
58
48
31
65
161
48
30 650 30
31 32187
65
4
5
4
3
2
1
6
Drain pipe connection
975 (P65 x 15)
Air Flow
SM830231-00Single欧州.indb198SM830231-00Single欧州.indb198 2014/06/0510:12:202014/06/0510:12:20

Table of Contents

Other manuals for Panasonic S-36PU1E5A

Related product manuals