EasyManua.ls Logo

Panasonic S-36PU1E5A - Page 210

Panasonic S-36PU1E5A
659 pages
To Next Page IconTo Next Page
To Next Page IconTo Next Page
To Previous Page IconTo Previous Page
To Previous Page IconTo Previous Page
Loading...
1-200
1
1
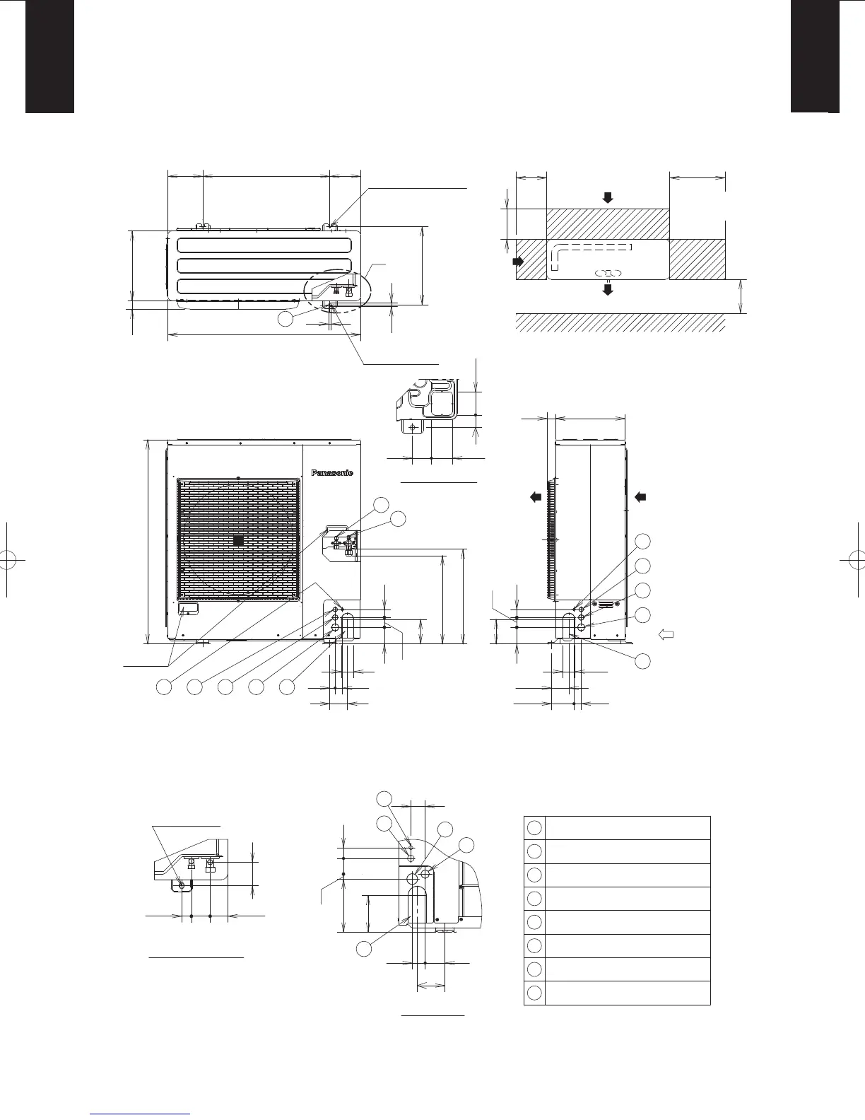
1-2. Dimensional Data
(B) Outdoor Units: U-60PE1E5A / U-71PE1E5A/ U-100PEY1E5/ U-125PEY1E5
U-71PE1E8A / U-100PEY1E8/ U-125PEY1E8
unit: mm
B
2-U shaped hole
Electrical wiring port (ø27)
Handle
2-18x13
Anchor hole
Enlarged view A
Hole
Electrical wiring port (ø22)
Electrical wiring port (ø13)
Unit:mm
100
or more
Air discharge
Air intake
Air intake
Space for
piping,wiring
and maintenance
Refrigerant piping hole
Refrigerant piping (gas pipe),
flared connection
(ø15.88)
Refrigerant piping (liquid pipe),
flared connection
(ø9.52)
Mounting hole, anchor bolt:M10
Electrical wiring port
(ø35)
View B
Refrigerant piping
end connection
Anchor hole
Air discharge
Air intake
(Bottom)
380.5
996
170 620 150
340
340
120
81
48
39
8765
2
3
4
4
6
7
8
5
18
A
39
48
81
120
26 35
86
84.5
109.5 35
60 60
41
41
13
940
173
47
3551
16
120
90
42 64
8
5
7
4
6
1
75.5
62 68.5
40
1
3
6
5
4
7
2
300
200
or more
500
or more
8
462
430
57.56131.5
76
SM830231-00Single欧州.indb200SM830231-00Single欧州.indb200 2014/06/0510:12:202014/06/0510:12:20

Table of Contents

Other manuals for Panasonic S-36PU1E5A

Related product manuals