EasyManua.ls Logo

Panasonic S-36PU1E5A - Page 211

Panasonic S-36PU1E5A
659 pages
To Next Page IconTo Next Page
To Next Page IconTo Next Page
To Previous Page IconTo Previous Page
To Previous Page IconTo Previous Page
Loading...
1-201
1
1
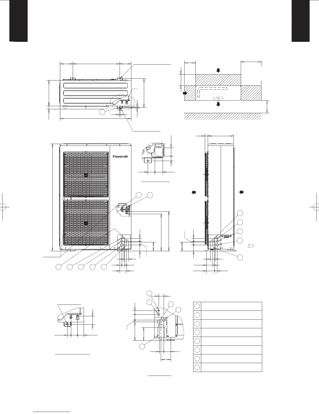
1-2. Dimensional Data
(B) Outdoor Units: U-100PE1E5A / U-125PE1E5A / U-140PE1E5A
U-100PE1E8A / U-125PE1E8A / U-140PE1E8A / U-140PEY1E8
Handle
Space for
piping,wiring
and maintenance
100
or more
2-18x13
2-U shaped hole
380.5
170 620 150
340
940
340
1416
39
48
81
120
32
6
7
6 7 85
5
8
39
48
81
120
1
13
18
A
4
4
26
109.5
35
86
84.5
35
60 60
6
4
7
5
8
6442
90
120
16
51 35
47
173
40
62 68.5
75.5
41
41
500
or more
200
or more
300
57.561
76
31.5
522
490
unit: mm
Electrical wiring port (ø27)
Electrical wiring port (ø22)
Electrical wiring port (ø13)
Refrigerant piping hole
Refrigerant piping(gas pipe),
flared connection
(ø15.88)
Refrigerant piping(liquid pipe),
flared connection (ø9.52)
Mounting hole, anchor bolt:M10
Electrical wiring port
(ø35)
1
3
6
5
4
7
2
8
Enlarged view A
View B
Refrigerant piping
end connection
Anchor hole
Anchor hole
Hole
(Bottom)
Air discharge
Air intake
B
Air intake
Air discharge
Air intake
SM830231-00Single欧州.indb201SM830231-00Single欧州.indb201 2014/06/0510:12:212014/06/0510:12:21

Table of Contents

Other manuals for Panasonic S-36PU1E5A

Related product manuals