EasyManua.ls Logo

Panasonic S-36PY1E5 - Page 252

Panasonic S-36PY1E5
739 pages
To Next Page IconTo Next Page
To Next Page IconTo Next Page
To Previous Page IconTo Previous Page
To Previous Page IconTo Previous Page
Loading...
1-242
1
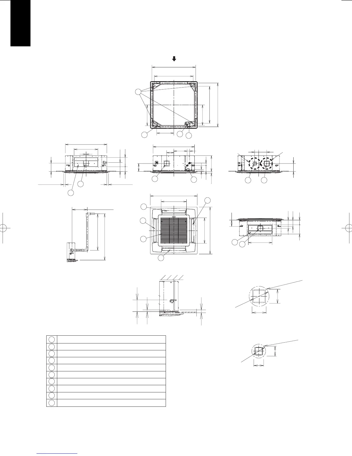
1-2. Dimensional Data
(A) Indoor Units: S-100PU1E5 / S-125PU1E5 / S-140PU1E5
unit: mm
30
18
118
187
2
480
840
167
187
180
319
95
80
80
1
2
3
4
5
6
7
8
9
10
Air intake
Discharge outlet
Refrigerant tubing (liquid tube) ø9.52 (flared)
Refrigerant tubing (gas tube) ø15.88 (flared)
Drain tube connection port VP25 (outer dia. ø32)
Power supply port
Discharge duct connection port (ø150)
Vaporization-type humidifier (optional) installation area
Suspension bolt hole (4-12×30 elongated hole)
Fresh air intake duct connection port (ø100) *
* Necessary to provide optional air intake kit.
<Filter dimension>
520 x 520 x 16
115
115
Detailed view Z
Detailed view Y
4 - ø3 burring hole
4 - ø3 burring hole
ø162
ø113
The length of the suspension bolts
should be selected so that there is
a gap of 30 mm or more below the
lower surface of the ceiling (18 mm
or more below the lower surface of
the main unit), as shown in the
figure at right. If the suspension
bolt is too long, it will contact
the ceiling panel and the unit
cannot be installed.
7
8
130
480
130
167
95
View X
Less than 300
Less than 670
Less than 850
2
2
2
1
514
950
515
950
2
X
10
7
160
16082
ZY
7
6
160
33.5
50
121
42
840
50
271
145
7
8
Less than 35Less than 35
345
9
5
3
4
421
(411)
745
(Suspension bolt pitch)
860~910
(Ceiling opening dimensions)
860~910
786
(Ceiling opening dimensions)
(Suspension bolt pitch)
SM830211-07PAC-i.indb242SM830211-07PAC-i.indb242 2013/09/1722:47:432013/09/1722:47:43

Table of Contents

Other manuals for Panasonic S-36PY1E5

Related product manuals