EasyManua.ls Logo

Panasonic S-36PY1E5 - Page 255

Panasonic S-36PY1E5
739 pages
To Next Page IconTo Next Page
To Next Page IconTo Next Page
To Previous Page IconTo Previous Page
To Previous Page IconTo Previous Page
Loading...
1-245
1
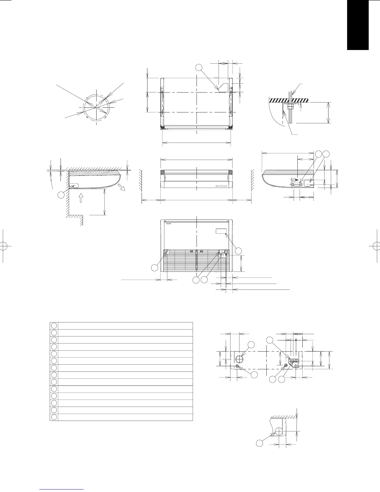
1-2. Dimensional Data
(A) Indoor Units: S-36PT2E5, S-45PT2E5, S-50PT2E5
(Suspension bolt pitch)
Suspension
bolt
Ceiling
surface
Bracket
Distance of each exposed
bolt must be of equal length
within 50mm.
Hole position of indoor unit rear-side
(Figure shows view from front)
Tubing hole position on wall surface
(Figure shows view from front)
(Suspension
bolt pitch)
(Closed with rubber stopper
at time of shipment.)
<Filter size>
(421 x 250 x 16) x 2 pcs.
960
954
911
Unit
Within
50mm
7
190265
73114
123 61
18
690
216
18680
131
193
235
9
Air intake
Detailed view of intaking
outside air duct connection port
Service space
(Left drain position)
90 (Right drain position)
70 (Liquid tubing)
86 (Gas tubing)
Service space
Over
250
90
Over
250
Approx. 2°
Air
discharge
Minimum 50cm
4
15
4
13
3
2
216
5
14
10
11 12
6
131
196
235
185
105
196
176
96
123
8670
97
90
90
120
1 Drain port VP20 (inside diameter ø26mm, drain hose supplied)
2 Left drain position
3 Refrigerant liquid tubing (ø6.35mm, flare connection)
ø100 (cutout)
ø113
4-ø3.1
4 Refrigerant gas tubing (ø12.7mm, flare connection)
5 Cover of rear tubing hole
6 Tubing hole on wall surface (ø100mm)
7 Upper side tubing port
8 Right side drain hose outlet port (cutout)
9 Left side drain hose outlet port (cutout)
10
Left-rear side drain hose outlet port (cutout)
11
Power inlet port
12
Remote control wiring and inter-unit wiring inlet port
13
Wireless remote controller receiver installation location
14
Outside air intake duct connection port (ø100mm, cutout)
unit :mm
SM830211-07PAC-i.indb245SM830211-07PAC-i.indb245 2013/09/1722:47:442013/09/1722:47:44

Table of Contents

Other manuals for Panasonic S-36PY1E5

Related product manuals